Elected Officials
Courts
Departments
Initiatives
Open Government
About
Login / Register
Home
/
Property & Tax Records
/
Property Records
/
Property & Tax Search
/
Parcel Profile
/
Print View
Search for Another Parcel
Parcel Profile
Historical Card
Sketches
Photos
Tax Map
Taxes
Print View
Print This Page
Address: 64 N MAIN ST
Parcel: 01001014000700
Parcel Profile
Address
64 | N | MAIN | ST
Street Status
PAVED
School District
NORTHWESTERN SCHOOL
Acreage
0.1722
Classification
R
Land Use Code
SINGLE FAMILY
Legal Description
64 N MAIN ST 50 X 150
Square Feet
1754
Topo
LEVEL
Utility
ALL PUBLIC
Zoning
Please contact your municipal zoning officer
Deed Book
2012
Deed Page
025368
2025 Tax Values
Land Value / Taxable
19,000 / 19,000.00
Building Value / Taxable
65,200 / 65,200.00
Total Value / Taxable
84,200 / 84,200.00
Clean & Green
Inactive
Homestead Status
Inactive
Farmstead Status
Inactive
Lerta Amount
0
Lerta Expiration Year
0
Residential Data
Card 1
Style
OLD STYLE
Basement
FULL
Year Built
1900
Exterior Wall
ALUMINUM/VINYL
Total Living Area
1754
Full Baths
1
Half Baths
1
Fuel Type
GAS
Heating
CENTRAL A/C
Heating System
FORCED AIR
Stories
2.0
Total Bedrooms
4
Total Family Rooms
0
Total Rooms
7
Fireplaces
0
Other Buildings & Yards
Description
Built
Width
Length
Area
FRAME OR CB DETACHED GARAGE
1900
12
18
216
Sales History
Sale Date
Type
Price
Book / Page
Other Info
9/14/2012
LAND & BUILDING
46526
2012 / 025368
DEED
7/16/2012
LAND & BUILDING
0
2012 / 018849
SPECIAL WARRANTY DEED
5/30/2012
LAND & BUILDING
1612
2012 / 013885
SHERIFF'S DED
10/19/2009
LAND & BUILDING
88000
1597 / 2318
SPECIAL WARRANTY DEED
8/23/2002
LAND & BUILDING
75500
0913 / 1062
DEED
10/17/2001
LAND & BUILDING
20000
0817 / 2347
9/12/1964
0
0903 / 0157
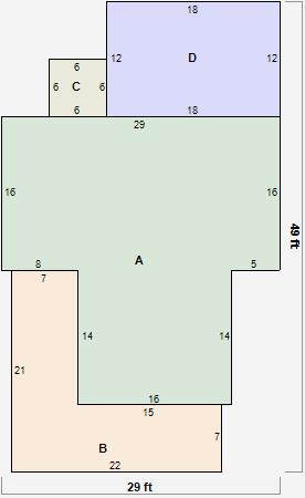
Parcel Sketches
Residential Card 1
A
MAIN
688 square feet
B
EFP ENCL FRAME PORCH
252 square feet
C
OFP OPEN FRAME PORCH
36 square feet
D
1S FR ONE STORY FRAME 1/2FR FRAME HALF-STORY
216 square feet
Parcel Images