Elected Officials
Courts
Departments
Initiatives
Open Government
About
Login / Register
Home
/
Property & Tax Records
/
Property Records
/
Property & Tax Search
/
Parcel Profile
/
Print View
Search for Another Parcel
Parcel Profile
Historical Card
Sketches
Photos
Tax Map
Taxes
Print View
Print This Page
Address: 85 MARKET ST
Parcel: 01002011001100
Parcel Profile
Address
85 | MARKET | ST
Street Status
PAVED
School District
NORTHWESTERN SCHOOL
Acreage
0.1722
Classification
R
Land Use Code
SINGLE FAMILY
Legal Description
85 MARKET ST 50X150 IRRG
Square Feet
1200
Topo
LEVEL
Utility
ALL PUBLIC
Zoning
Please contact your municipal zoning officer
Deed Book
2015
Deed Page
023449
2026 Tax Values
Land Value / Taxable
19,000 / 19,000.00
Building Value / Taxable
54,150 / 54,150.00
Total Value / Taxable
73,150 / 73,150.00
Clean & Green
Inactive
Homestead Status
Inactive
Farmstead Status
Inactive
Lerta Amount
0
Lerta Expiration Year
0
Residential Data
Card 1
Style
OLD STYLE
Basement
FULL
Year Built
1920
Exterior Wall
FRAME
Total Living Area
1200
Full Baths
2
Half Baths
0
Fuel Type
GAS
Heating
CENTRAL
Heating System
FORCED AIR
Stories
2.0
Total Bedrooms
4
Total Family Rooms
0
Total Rooms
6
Fireplaces
0
Other Buildings & Yards
No OBY Data Found
Sales History
Sale Date
Type
Price
Book / Page
Other Info
10/21/2015
LAND & BUILDING
65000
2015 / 023449
SPECIAL WARRANTY DEED
12/3/2007
LAND & BUILDING
58000
1463 / 2140
WARRANTY/SURVIVORSHIP DEED
8/30/2007
LAND & BUILDING
0
1443 / 1809
DEED
6/3/1975
LAND & BUILDING
16900
1154 / 0154
5/10/1960
0
0819 / 0134
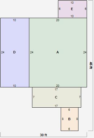
Parcel Sketches
Residential Card 1
A
MAIN
480 square feet
B
WDDCK WOOD DECKS
48 square feet
C
EFP ENCL FRAME PORCH
119 square feet
D
FR UT FRAME UTILITY BUILDING 1S FR ONE STORY FRAME
240 square feet
E
EFP ENCL FRAME PORCH
60 square feet
Parcel Images
Please note:
this tab is for informational purposes only and may not show all delinquencies, see the Taxes tab for more accurate delinquent taxes due.