Elected Officials
Courts
Departments
Initiatives
Open Government
About
Login / Register
Home
/
Property & Tax Records
/
Property Records
/
Property & Tax Search
/
Parcel Profile
/
Print View
Search for Another Parcel
Parcel Profile
Historical Card
Sketches
Photos
Tax Map
Taxes
Print View
Print This Page
Address: 115 17 E STATE ST
Parcel: 01003035005900
Parcel Profile
Address
115 | 17 | E | STATE | ST
Street Status
PAVED
School District
NORTHWESTERN SCHOOL
Acreage
0.0803
Classification
R
Land Use Code
TWO FAMILY
Legal Description
115 117 E STATE ST 50 X 70
Square Feet
1976
Topo
LEVEL
Utility
ALL PUBLIC
Zoning
Please contact your municipal zoning officer
Deed Book
0334
Deed Page
0875
2026 Tax Values
Land Value / Taxable
15,800 / 15,800.00
Building Value / Taxable
36,200 / 36,200.00
Total Value / Taxable
52,000 / 52,000.00
Clean & Green
Inactive
Homestead Status
Inactive
Farmstead Status
Inactive
Lerta Amount
0
Lerta Expiration Year
0
Residential Data
Card 1
Style
OLD STYLE
Basement
FULL
Year Built
1900
Exterior Wall
ALUMINUM/VINYL
Total Living Area
1976
Full Baths
2
Half Baths
0
Fuel Type
GAS
Heating
CENTRAL
Heating System
FORCED AIR
Stories
2.0
Total Bedrooms
5
Total Family Rooms
0
Total Rooms
10
Fireplaces
0
Other Buildings & Yards
No OBY Data Found
Sales History
Sale Date
Type
Price
Book / Page
Other Info
5/13/1994
LAND & BUILDING
18000
0334 / 0875
3/16/1960
0
0816 / 0173
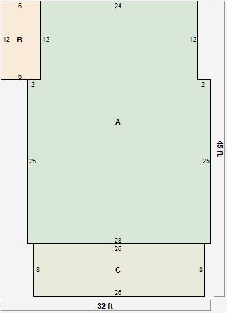
Parcel Sketches
Residential Card 1
A
MAIN
988 square feet
B
OFP OPEN FRAME PORCH
72 square feet
C
OFP OPEN FRAME PORCH
208 square feet
Parcel Images
Please note:
this tab is for informational purposes only and may not show all delinquencies, see the Taxes tab for more accurate delinquent taxes due.