Elected Officials
Courts
Departments
Initiatives
Open Government
About
Login / Register
Home
/
Property & Tax Records
/
Property Records
/
Property & Tax Search
/
Parcel Profile
/
Print View
Search for Another Parcel
Parcel Profile
Historical Card
Sketches
Photos
Tax Map
Taxes
Print View
Print This Page
Address: 10 12 WATER ST
Parcel: 01003035006200
Parcel Profile
Address
10 | 12 | WATER | ST
Street Status
PAVED
School District
NORTHWESTERN SCHOOL
Acreage
0.1544
Classification
R
Land Use Code
TWO FAMILY
Legal Description
10-12 WATER ST 60 X 112.10
Square Feet
2664
Topo
LEVEL
Utility
ALL PUBLIC
Zoning
Please contact your municipal zoning officer
Deed Book
1570
Deed Page
0680
2026 Tax Values
Land Value / Taxable
18,800 / 18,800.00
Building Value / Taxable
90,660 / 90,660.00
Total Value / Taxable
109,460 / 109,460.00
Clean & Green
Inactive
Homestead Status
Inactive
Farmstead Status
Inactive
Lerta Amount
0
Lerta Expiration Year
0
Residential Data
Card 1
Style
OLD STYLE
Basement
FULL
Year Built
1900
Exterior Wall
ALUMINUM/VINYL
Total Living Area
2664
Full Baths
3
Half Baths
1
Fuel Type
GAS
Heating
CENTRAL
Heating System
FORCED AIR
Stories
2.0
Total Bedrooms
6
Total Family Rooms
0
Total Rooms
12
Fireplaces
0
Other Buildings & Yards
No OBY Data Found
Sales History
Sale Date
Type
Price
Book / Page
Other Info
6/22/2009
LAND & BUILDING
38000
1570 / 0680
DEED
1/16/2009
LAND & BUILDING
0
1539 / 1938
SHERIFF'S DED
12/21/2001
LAND & BUILDING
75900
0837 / 1816
12/18/2001
0
0835 / 2175
12/18/2001
LAND & BUILDING
0
0835 / 2177
4/5/1989
25000
0082 / 0585
1/7/1971
0
1036 / 0277
3/28/1953
0
0833 / 0164
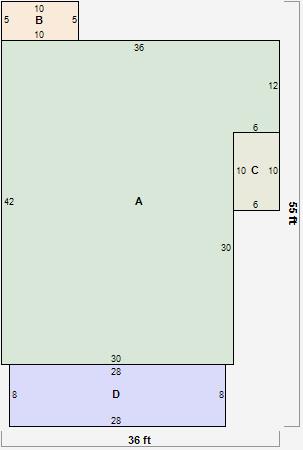
Parcel Sketches
Residential Card 1
A
MAIN
1332 square feet
B
EFP ENCL FRAME PORCH
50 square feet
C
OFP OPEN FRAME PORCH
60 square feet
D
OFP OPEN FRAME PORCH
224 square feet
Parcel Images
Please note:
this tab is for informational purposes only and may not show all delinquencies, see the Taxes tab for more accurate delinquent taxes due.