Elected Officials
Courts
Departments
Initiatives
Open Government
About
Login / Register
Home
/
Property & Tax Records
/
Property Records
/
Property & Tax Search
/
Parcel Profile
/
Print View
Search for Another Parcel
Parcel Profile
Historical Card
Sketches
Photos
Tax Map
Taxes
Print View
Print This Page
Address: 227 E STATE ST
Parcel: 01003042000300
Parcel Profile
Address
227 | E | STATE | ST
Street Status
PAVED
School District
NORTHWESTERN SCHOOL
Acreage
0.1607
Classification
R
Land Use Code
SINGLE FAMILY
Legal Description
E STATE ST LOT 12 50 X 140
Square Feet
1448
Topo
LEVEL
Utility
ALL PUBLIC
Zoning
Please contact your municipal zoning officer
Deed Book
2021
Deed Page
000816
2026 Tax Values
Land Value / Taxable
18,900 / 18,900.00
Building Value / Taxable
44,080 / 44,080.00
Total Value / Taxable
62,980 / 62,980.00
Clean & Green
Inactive
Homestead Status
Inactive
Farmstead Status
Inactive
Lerta Amount
0
Lerta Expiration Year
0
Residential Data
Card 1
Style
OLD STYLE
Basement
FULL
Year Built
1920
Exterior Wall
ALUMINUM/VINYL
Total Living Area
1448
Full Baths
1
Half Baths
0
Fuel Type
GAS
Heating
CENTRAL
Heating System
FORCED AIR
Stories
2.0
Total Bedrooms
4
Total Family Rooms
0
Total Rooms
8
Fireplaces
0
Other Buildings & Yards
Description
Built
Width
Length
Area
FRAME UTILITY SHED
2016
10
10
100
Sales History
Sale Date
Type
Price
Book / Page
Other Info
1/12/2021
LAND & BUILDING
90000
2021 / 000816
SPECIAL WARRANTY DEED
4/25/2016
LAND & BUILDING
79900
2016 / 008014
SPECIAL WARRANTY DEED
3/2/1984
LAND & BUILDING
0
1527 / 0121
12/30/1983
0
1520 / 0529
1/27/1983
0
1484 / 0120
8/29/1974
0
1127 / 0266
10/23/1969
8500
1012 / 0471
7/30/1964
0
0901 / 0126
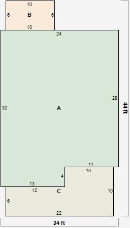
Parcel Sketches
Residential Card 1
A
MAIN
724 square feet
B
OFP OPEN FRAME PORCH
60 square feet
C
OFP OPEN FRAME PORCH
172 square feet
Parcel Images
Please note:
this tab is for informational purposes only and may not show all delinquencies, see the Taxes tab for more accurate delinquent taxes due.