Elected Officials
Courts
Departments
Initiatives
Open Government
About
Login / Register
Home
/
Property & Tax Records
/
Property Records
/
Property & Tax Search
/
Parcel Profile
/
Print View
Search for Another Parcel
Parcel Profile
Historical Card
Sketches
Photos
Tax Map
Taxes
Print View
Print This Page
Address: 56 E PEARL ST
Parcel: 01004019000500
Parcel Profile
Address
56 | E | PEARL | ST
Street Status
PAVED
School District
NORTHWESTERN SCHOOL
Acreage
0.2324
Classification
R
Land Use Code
TWO FAMILY
Legal Description
56 E PEARL ST 75 X 135
Square Feet
2173
Topo
LEVEL
Utility
ALL PUBLIC
Zoning
Please contact your municipal zoning officer
Deed Book
0953
Deed Page
2333
2026 Tax Values
Land Value / Taxable
19,800 / 19,800.00
Building Value / Taxable
83,800 / 83,800.00
Total Value / Taxable
103,600 / 103,600.00
Clean & Green
Inactive
Homestead Status
Active
Farmstead Status
Inactive
Lerta Amount
0
Lerta Expiration Year
0
Residential Data
Card 1
Style
OLD STYLE
Basement
FULL
Year Built
1860
Exterior Wall
ALUMINUM/VINYL
Total Living Area
2173
Full Baths
1
Half Baths
0
Fuel Type
GAS
Heating
CENTRAL
Heating System
FORCED AIR
Stories
2.0
Total Bedrooms
4
Total Family Rooms
0
Total Rooms
9
Fireplaces
1
Other Buildings & Yards
No OBY Data Found
Sales History
Sale Date
Type
Price
Book / Page
Other Info
12/6/2002
LAND & BUILDING
74000
0953 / 2333
WARRANTY/SURVIVORSHIP DEED
9/2/1992
40000
0228 / 1753
8/30/1985
0
1595 / 0146
4/1/1980
36500
1382 / 0586
11/4/1975
0
0992 / 0259
11/3/1975
27000
1181 / 0267
11/4/1957
0
0769 / 0398
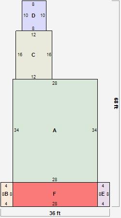
Parcel Sketches
Residential Card 1
A
MAIN
952 square feet
B
WDDCK WOOD DECKS
32 square feet
C
UNFIN BSMT BASEMENT UNFINISHED 1S FR ONE STORY FRAME AT FN ATTIC-FINISHED
192 square feet
D
MA_PT CONC/MAS PATIO
80 square feet
E
WDDCK WOOD DECKS
32 square feet
F
OFP OPEN FRAME PORCH WDDCK WOOD DECKS
224 square feet
Parcel Images
Please note:
this tab is for informational purposes only and may not show all delinquencies, see the Taxes tab for more accurate delinquent taxes due.