Elected Officials
Courts
Departments
Initiatives
Open Government
About
Login / Register
Home
/
Property & Tax Records
/
Property Records
/
Property & Tax Search
/
Parcel Profile
/
Print View
Search for Another Parcel
Parcel Profile
Historical Card
Sketches
Photos
Tax Map
Taxes
Print View
Print This Page
Address: 68 CANAL ST
Parcel: 01004023000400
Parcel Profile
Address
68 | CANAL | ST
Street Status
PAVED
School District
NORTHWESTERN SCHOOL
Acreage
0.0689
Classification
R
Land Use Code
SINGLE FAMILY
Legal Description
68 CANAL ST 36.5 X 86.5
Square Feet
1376
Topo
LEVEL
Utility
ALL PUBLIC
Zoning
Please contact your municipal zoning officer
Deed Book
2018
Deed Page
017689
2026 Tax Values
Land Value / Taxable
15,300 / 15,300.00
Building Value / Taxable
51,200 / 51,200.00
Total Value / Taxable
66,500 / 66,500.00
Clean & Green
Inactive
Homestead Status
Active
Farmstead Status
Inactive
Lerta Amount
0
Lerta Expiration Year
0
Residential Data
Card 1
Style
OLD STYLE
Basement
FULL
Year Built
1900
Exterior Wall
ALUMINUM/VINYL
Total Living Area
1376
Full Baths
1
Half Baths
1
Fuel Type
GAS
Heating
CENTRAL
Heating System
FORCED AIR
Stories
2.0
Total Bedrooms
3
Total Family Rooms
0
Total Rooms
6
Fireplaces
0
Other Buildings & Yards
Description
Built
Width
Length
Area
FRAME OR CB DETACHED GARAGE
1940
22
16
352
FRAME UTILITY SHED
1989
10
10
100
Sales History
Sale Date
Type
Price
Book / Page
Other Info
8/28/2018
LAND & BUILDING
78000
2018 / 017689
SPECIAL WARRANTY DEED
7/31/2001
LAND & BUILDING
0
/
7/31/2001
LAND & BUILDING
55000
797 / 423
2/11/1983
0
1485 / 0597
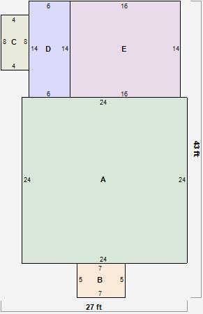
Parcel Sketches
Residential Card 1
A
MAIN
576 square feet
B
MA STOOP/TERR MAS STOOP
35 square feet
C
WDDCK WOOD DECKS
32 square feet
D
EFP ENCL FRAME PORCH
84 square feet
E
UNFIN BSMT BASEMENT UNFINISHED 1S FR ONE STORY FRAME AT UN ATTIC-UNFINISHED
224 square feet
Parcel Images
Please note:
this tab is for informational purposes only and may not show all delinquencies, see the Taxes tab for more accurate delinquent taxes due.