Elected Officials
Courts
Departments
Initiatives
Open Government
About
Login / Register
Home
/
Property & Tax Records
/
Property Records
/
Property & Tax Search
/
Parcel Profile
/
Print View
Search for Another Parcel
Parcel Profile
Historical Card
Sketches
Photos
Tax Map
Taxes
Print View
Print This Page
Address: 12 ELK ST
Parcel: 01004026000600
Parcel Profile
Address
12 | ELK | ST
Street Status
PAVED
School District
NORTHWESTERN SCHOOL
Acreage
0.0719
Classification
R
Land Use Code
SINGLE FAMILY
Legal Description
12 ELK ST 45 X 69.64
Square Feet
1416
Topo
LEVEL
Utility
ALL PUBLIC
Zoning
Please contact your municipal zoning officer
Deed Book
2025
Deed Page
012115
2025 Tax Values
Land Value / Taxable
15,400 / 15,400.00
Building Value / Taxable
64,520 / 64,520.00
Total Value / Taxable
79,920 / 79,920.00
Clean & Green
Inactive
Homestead Status
Inactive
Farmstead Status
Inactive
Lerta Amount
0
Lerta Expiration Year
0
Residential Data
Card 1
Style
OLD STYLE
Basement
FULL
Year Built
1900
Exterior Wall
ALUMINUM/VINYL
Total Living Area
1416
Full Baths
2
Half Baths
0
Fuel Type
GAS
Heating
CENTRAL
Heating System
FORCED AIR
Stories
2.0
Total Bedrooms
3
Total Family Rooms
0
Total Rooms
5
Fireplaces
0
Other Buildings & Yards
No OBY Data Found
Sales History
Sale Date
Type
Price
Book / Page
Other Info
7/22/2025
LAND & BUILDING
0
2025 / 012115
QUIT/CLAIM SURVIVORSHIP
12/3/2014
LAND & BUILDING
0
2014 / 026150
WARRANTY/SURVIVORSHIP DEED
11/19/2014
LAND & BUILDING
20000
2014 / 024971
SPECIAL WARRANTY DEED
8/15/2014
LAND & BUILDING
1455
2014 / 017143
SHERIFF'S DED
11/12/2004
LAND & BUILDING
70600
1189 / 0385
WARRANTY/SURVIVORSHIP DEED
3/12/2003
LAND & BUILDING
0
0985 / 0685
AFFIDAVIT
12/30/1994
LAND & BUILDING
45000
0368 / 1035
9/9/1992
0
0229 / 1122
6/17/1992
0
0217 / 0950
6/29/1987
0
0017 / 0683
10/11/1985
0
1601 / 0105
3/29/1928
0
0328 / 0164
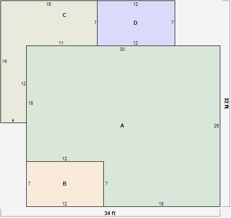
Parcel Sketches
Residential Card 1
A
MAIN
666 square feet
B
WDDCK WOOD DECKS
84 square feet
C
WDDCK WOOD DECKS
153 square feet
D
1S FR ONE STORY FRAME
84 square feet
Parcel Images