Elected Officials
Courts
Departments
Initiatives
Open Government
About
Login / Register
Home
/
Property & Tax Records
/
Property Records
/
Property & Tax Search
/
Parcel Profile
/
Print View
Search for Another Parcel
Parcel Profile
Historical Card
Sketches
Photos
Tax Map
Taxes
Print View
Print This Page
Address: 48 ELK ST
Parcel: 01004027000400
Parcel Profile
Address
48 | ELK | ST
Street Status
PAVED
School District
NORTHWESTERN SCHOOL
Acreage
0.1952
Classification
R
Land Use Code
TWO FAMILY
Legal Description
48 ELK ST 61.19 X 125 IRR
Square Feet
1359
Topo
LEVEL
Utility
ALL PUBLIC
Zoning
Please contact your municipal zoning officer
Deed Book
1228
Deed Page
1478
2026 Tax Values
Land Value / Taxable
19,300 / 19,300.00
Building Value / Taxable
20,360 / 20,360.00
Total Value / Taxable
39,660 / 39,660.00
Clean & Green
Inactive
Homestead Status
Inactive
Farmstead Status
Inactive
Lerta Amount
0
Lerta Expiration Year
0
Residential Data
Card 1
Style
OLD STYLE
Basement
FULL
Year Built
1900
Exterior Wall
ALUMINUM/VINYL
Total Living Area
1359
Full Baths
2
Half Baths
0
Fuel Type
GAS
Heating
CENTRAL
Heating System
FORCED AIR
Stories
2.0
Total Bedrooms
2
Total Family Rooms
0
Total Rooms
6
Fireplaces
0
Other Buildings & Yards
No OBY Data Found
Sales History
Sale Date
Type
Price
Book / Page
Other Info
4/26/2005
LAND & BUILDING
25400
1228 / 1478
QUIT CLAIM DEED
4/24/2002
LAND & BUILDING
25000
0873 / 2158
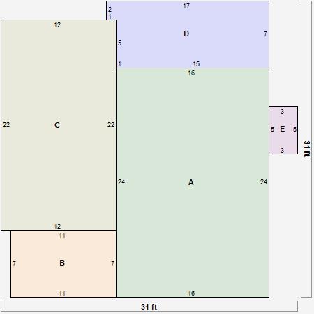
Parcel Sketches
Residential Card 1
A
MAIN
384 square feet
B
OFP OPEN FRAME PORCH
77 square feet
C
UNFIN BSMT BASEMENT UNFINISHED 1S FR ONE STORY FRAME 1/2FR FRAME HALF-STORY
264 square feet
D
1S FR ONE STORY FRAME
114 square feet
E
FROVR FRAME OVERHANG
15 square feet
Parcel Images
Please note:
this tab is for informational purposes only and may not show all delinquencies, see the Taxes tab for more accurate delinquent taxes due.