Elected Officials
Courts
Departments
Initiatives
Open Government
About
Login / Register
Home
/
Property & Tax Records
/
Property Records
/
Property & Tax Search
/
Parcel Profile
/
Print View
Search for Another Parcel
Parcel Profile
Historical Card
Sketches
Photos
Tax Map
Taxes
Print View
Print This Page
Address: 20 N MAIN ST
Parcel: 01005016000700
Parcel Profile
Address
20 | N | MAIN | ST
Street Status
SIDEWALK
School District
NORTHWESTERN SCHOOL
Acreage
0.2500
Classification
R
Land Use Code
SINGLE FAMILY
Legal Description
20 N MAIN ST 66 X 165
Square Feet
1345
Topo
LEVEL
Utility
ALL PUBLIC
Zoning
Please contact your municipal zoning officer
Deed Book
0444
Deed Page
1026
2026 Tax Values
Land Value / Taxable
20,000 / 20,000.00
Building Value / Taxable
56,500 / 56,500.00
Total Value / Taxable
76,500 / 76,500.00
Clean & Green
Inactive
Homestead Status
Active
Farmstead Status
Inactive
Lerta Amount
0
Lerta Expiration Year
0
Residential Data
Card 1
Style
CAPE
Basement
FULL
Year Built
1930
Exterior Wall
ALUMINUM/VINYL
Total Living Area
1345
Full Baths
1
Half Baths
0
Fuel Type
GAS
Heating
CENTRAL
Heating System
FORCED AIR
Stories
1.0
Total Bedrooms
3
Total Family Rooms
0
Total Rooms
7
Fireplaces
1
Other Buildings & Yards
Description
Built
Width
Length
Area
FRAME OR CB DETACHED GARAGE
1980
24
30
720
Sales History
Sale Date
Type
Price
Book / Page
Other Info
6/10/1996
LAND & BUILDING
62000
0444 / 1026
3/24/1953
0
0646 / 0001
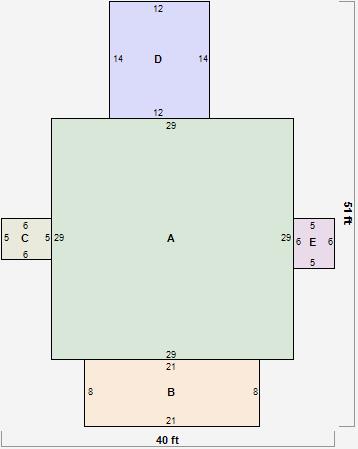
Parcel Sketches
Residential Card 1
A
MAIN
841 square feet
B
OFP OPEN FRAME PORCH
168 square feet
C
EFP ENCL FRAME PORCH
30 square feet
D
1S FR ONE STORY FRAME
168 square feet
E
EFP ENCL FRAME PORCH
30 square feet
Parcel Images
Please note:
this tab is for informational purposes only and may not show all delinquencies, see the Taxes tab for more accurate delinquent taxes due.