Elected Officials
Courts
Departments
Initiatives
Open Government
About
Login / Register
Home
/
Property & Tax Records
/
Property Records
/
Property & Tax Search
/
Parcel Profile
/
Print View
Search for Another Parcel
Parcel Profile
Historical Card
Sketches
Photos
Tax Map
Taxes
Print View
Print This Page
Address: 31 JACKSON AVE
Parcel: 01005045001400
Parcel Profile
Address
31 | JACKSON | AVE
Street Status
PAVED | SIDEWALK
School District
NORTHWESTERN SCHOOL
Acreage
0.7025
Classification
R
Land Use Code
SINGLE FAMILY
Legal Description
31 JACKSON AVE 100 X 306
Square Feet
2315
Topo
LEVEL
Utility
ALL PUBLIC
Zoning
Please contact your municipal zoning officer
Deed Book
1589
Deed Page
0398
2026 Tax Values
Land Value / Taxable
25,700 / 25,700.00
Building Value / Taxable
77,700 / 77,700.00
Total Value / Taxable
103,400 / 103,400.00
Clean & Green
Inactive
Homestead Status
Active
Farmstead Status
Inactive
Lerta Amount
0
Lerta Expiration Year
0
Residential Data
Card 1
Style
OLD STYLE
Basement
FULL
Year Built
1900
Exterior Wall
ALUMINUM/VINYL
Total Living Area
2315
Full Baths
1
Half Baths
1
Fuel Type
GAS
Heating
CENTRAL A/C
Heating System
FORCED AIR
Stories
2.0
Total Bedrooms
3
Total Family Rooms
1
Total Rooms
7
Fireplaces
0
Other Buildings & Yards
Description
Built
Width
Length
Area
FRAME OR CB DETACHED GARAGE
1970
24
32
768
Sales History
Sale Date
Type
Price
Book / Page
Other Info
7/26/1985
67000
1589 / 0398
7/10/1962
0
0861 / 0100
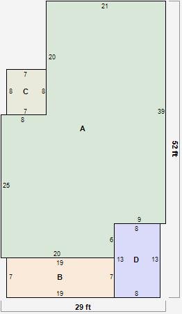
Parcel Sketches
Residential Card 1
A
MAIN
1091 square feet
B
1S FR ONE STORY FRAME
133 square feet
C
WDDCK WOOD DECKS
56 square feet
D
EFP ENCL FRAME PORCH
104 square feet
Parcel Images
Please note:
this tab is for informational purposes only and may not show all delinquencies, see the Taxes tab for more accurate delinquent taxes due.