Elected Officials
Courts
Departments
Initiatives
Open Government
About
Login / Register
Home
/
Property & Tax Records
/
Property Records
/
Property & Tax Search
/
Parcel Profile
/
Print View
Search for Another Parcel
Parcel Profile
Historical Card
Sketches
Photos
Tax Map
Taxes
Print View
Print This Page
Address: 23 CLIFF ST
Parcel: 01005045002000
Parcel Profile
Address
23 | CLIFF | ST
Street Status
PAVED | SIDEWALK
School District
NORTHWESTERN SCHOOL
Acreage
0.1505
Classification
R
Land Use Code
SINGLE FAMILY
Legal Description
23 CLIFF ST 60 X 150 IRR
Square Feet
1347
Topo
LEVEL
Utility
ALL PUBLIC
Zoning
Please contact your municipal zoning officer
Deed Book
2013
Deed Page
018845
2026 Tax Values
Land Value / Taxable
18,700 / 18,700.00
Building Value / Taxable
48,980 / 48,980.00
Total Value / Taxable
67,680 / 67,680.00
Clean & Green
Inactive
Homestead Status
Inactive
Farmstead Status
Inactive
Lerta Amount
0
Lerta Expiration Year
0
Residential Data
Card 1
Style
OLD STYLE
Basement
FULL
Year Built
1900
Exterior Wall
COMPOSITION
Total Living Area
1347
Full Baths
1
Half Baths
0
Fuel Type
GAS
Heating
CENTRAL
Heating System
FORCED AIR
Stories
2.0
Total Bedrooms
3
Total Family Rooms
0
Total Rooms
6
Fireplaces
0
Other Buildings & Yards
Description
Built
Width
Length
Area
FRAME OR CB DETACHED GARAGE
1900
10
20
200
Sales History
Sale Date
Type
Price
Book / Page
Other Info
7/22/2013
LAND & BUILDING
20000
2013 / 018845
SPECIAL WARRANTY DEED
2/8/2013
LAND & BUILDING
11850
2013 / 003149
SPECIAL WARRANTY DEED
9/21/2012
LAND & BUILDING
1425
2012 / 026107
SHERIFF'S DED
2/20/2007
LAND & BUILDING
37000
1396 / 0029
DEED
3/31/2006
LAND & BUILDING
2272
1316 / 1111
SHERIFF'S DED
10/15/1991
23500
0180 / 1386
4/8/1932
0
0371 / 0734
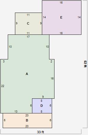
Parcel Sketches
Residential Card 1
A
MAIN
600 square feet
B
OFP OPEN FRAME PORCH
120 square feet
C
1S FR ONE STORY FRAME
99 square feet
D
UNFIN BSMT BASEMENT UNFINISHED 1S FR ONE STORY FRAME
48 square feet
E
WDDCK WOOD DECKS
224 square feet
Parcel Images
Please note:
this tab is for informational purposes only and may not show all delinquencies, see the Taxes tab for more accurate delinquent taxes due.