Elected Officials
Courts
Departments
Initiatives
Open Government
About
Login / Register
Home
/
Property & Tax Records
/
Property Records
/
Property & Tax Search
/
Parcel Profile
/
Print View
Search for Another Parcel
Parcel Profile
Historical Card
Sketches
Photos
Tax Map
Taxes
Print View
Print This Page
Address: 78 W STATE ST
Parcel: 01005047000300
Parcel Profile
Address
78 | W | STATE | ST
Street Status
PAVED | SIDEWALK
School District
NORTHWESTERN SCHOOL
Acreage
0.1664
Classification
R
Land Use Code
SINGLE FAMILY
Legal Description
78 W STATE ST 50 X 145
Square Feet
1464
Topo
ABOVE STREET
Utility
ALL PUBLIC
Zoning
Please contact your municipal zoning officer
Deed Book
2022
Deed Page
004411
2026 Tax Values
Land Value / Taxable
18,900 / 18,900.00
Building Value / Taxable
68,600 / 68,600.00
Total Value / Taxable
87,500 / 87,500.00
Clean & Green
Inactive
Homestead Status
Inactive
Farmstead Status
Inactive
Lerta Amount
0
Lerta Expiration Year
0
Residential Data
Card 1
Style
OLD STYLE
Basement
FULL
Year Built
1861
Exterior Wall
ALUMINUM/VINYL
Total Living Area
1464
Full Baths
1
Half Baths
0
Fuel Type
GAS
Heating
CENTRAL
Heating System
FORCED AIR
Stories
2.0
Total Bedrooms
3
Total Family Rooms
0
Total Rooms
7
Fireplaces
0
Other Buildings & Yards
Description
Built
Width
Length
Area
FRAME OR CB DETACHED GARAGE
1920
16
20
320
Sales History
Sale Date
Type
Price
Book / Page
Other Info
3/1/2022
LAND & BUILDING
114000
2022 / 004411
SPECIAL WARRANTY DEED
9/19/2013
LAND & BUILDING
0
2013 / 025040
DEED
7/10/2002
LAND & BUILDING
76900
0898 / 1459
FIDUCIARY DEED
7/1/1992
0
0219 / 1943
6/10/1959
0
0800 / 0082
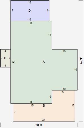
Parcel Sketches
Residential Card 1
A
MAIN
672 square feet
B
OFP OPEN FRAME PORCH
213 square feet
C
OFP OPEN FRAME PORCH
28 square feet
D
1S FR ONE STORY FRAME
120 square feet
Parcel Images
Please note:
this tab is for informational purposes only and may not show all delinquencies, see the Taxes tab for more accurate delinquent taxes due.