Elected Officials
Courts
Departments
Initiatives
Open Government
About
Login / Register
Home
/
Property & Tax Records
/
Property Records
/
Property & Tax Search
/
Parcel Profile
/
Print View
Search for Another Parcel
Parcel Profile
Historical Card
Sketches
Photos
Tax Map
Taxes
Print View
Print This Page
Address: 89 JACKSON ST
Parcel: 01005047001200
Parcel Profile
Address
89 | JACKSON | ST
Street Status
PAVED | SIDEWALK
School District
NORTHWESTERN SCHOOL
Acreage
0.8312
Classification
R
Land Use Code
SINGLE FAMILY
Legal Description
89 JACKSON AVE 127.2 X 295 IRR
Square Feet
1512
Topo
LEVEL
Utility
ALL PUBLIC
Zoning
Please contact your municipal zoning officer
Deed Book
2022
Deed Page
009157
2026 Tax Values
Land Value / Taxable
27,300 / 27,300.00
Building Value / Taxable
52,960 / 52,960.00
Total Value / Taxable
80,260 / 80,260.00
Clean & Green
Inactive
Homestead Status
Active
Farmstead Status
Inactive
Lerta Amount
0
Lerta Expiration Year
0
Residential Data
Card 1
Style
OLD STYLE
Basement
FULL
Year Built
1900
Exterior Wall
ALUMINUM/VINYL
Total Living Area
1512
Full Baths
1
Half Baths
0
Fuel Type
GAS
Heating
CENTRAL
Heating System
FORCED AIR
Stories
2.0
Total Bedrooms
3
Total Family Rooms
0
Total Rooms
8
Fireplaces
0
Other Buildings & Yards
Description
Built
Width
Length
Area
FRAME OR CB DETACHED GARAGE
1900
16
18
288
FRAME UTILITY SHED
2022
10
12
120
Sales History
Sale Date
Type
Price
Book / Page
Other Info
4/29/2022
LAND & BUILDING
110000
2022 / 009157
FIDUCIARY DEED
9/14/1964
0
0903 / 0370
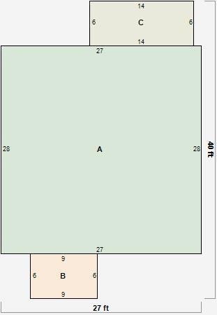
Parcel Sketches
Residential Card 1
A
MAIN
756 square feet
B
MA STOOP/TERR MAS STOOP
54 square feet
C
FR UT FRAME UTILITY BUILDING
84 square feet
Parcel Images
Please note:
this tab is for informational purposes only and may not show all delinquencies, see the Taxes tab for more accurate delinquent taxes due.