Elected Officials
Courts
Departments
Initiatives
Open Government
About
Login / Register
Home
/
Property & Tax Records
/
Property Records
/
Property & Tax Search
/
Parcel Profile
/
Print View
Search for Another Parcel
Parcel Profile
Historical Card
Sketches
Photos
Tax Map
Taxes
Print View
Print This Page
Address: 97 FIRST AVE
Parcel: 01008035008700
Parcel Profile
Address
97 | FIRST | AVE
Street Status
PAVED
School District
NORTHWESTERN SCHOOL
Acreage
0.3329
Classification
R
Land Use Code
SINGLE FAMILY
Legal Description
97 FIRST AVE L 54-56 100 X 145
Square Feet
969
Topo
LEVEL
Utility
ALL PUBLIC
Zoning
Please contact your municipal zoning officer
Deed Book
2018
Deed Page
000947
2026 Tax Values
Land Value / Taxable
21,000 / 21,000.00
Building Value / Taxable
54,400 / 54,400.00
Total Value / Taxable
75,400 / 75,400.00
Clean & Green
Inactive
Homestead Status
Active
Farmstead Status
Inactive
Lerta Amount
0
Lerta Expiration Year
0
Residential Data
Card 1
Style
COLONIAL
Basement
PART
Year Built
1890
Exterior Wall
ALUMINUM/VINYL
Total Living Area
969
Full Baths
1
Half Baths
1
Fuel Type
GAS
Heating
CENTRAL A/C
Heating System
FORCED AIR
Stories
1.0
Total Bedrooms
2
Total Family Rooms
0
Total Rooms
7
Fireplaces
0
Other Buildings & Yards
No OBY Data Found
Sales History
Sale Date
Type
Price
Book / Page
Other Info
1/16/2018
LAND & BUILDING
76000
2018 / 000947
SPECIAL WARRANTY DEED
8/18/2009
LAND & BUILDING
78900
1584 / 1351
DEED
1/23/2007
LAND & BUILDING
0
1390 / 2138
QUIT CLAIM DEED
1/23/2007
LAND & BUILDING
26000
1390 / 2140
WARRANTY/SURVIVORSHIP DEED
9/19/1996
LAND & BUILDING
16000
487 / 1993
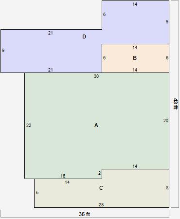
Parcel Sketches
Residential Card 1
A
MAIN
632 square feet
B
1S FR ONE STORY FRAME
84 square feet
C
OFP OPEN FRAME PORCH
196 square feet
D
WDDCK WOOD DECKS
315 square feet
Parcel Images
Please note:
this tab is for informational purposes only and may not show all delinquencies, see the Taxes tab for more accurate delinquent taxes due.