Elected Officials
Courts
Departments
Initiatives
Open Government
About
Login / Register
Home
/
Property & Tax Records
/
Property Records
/
Property & Tax Search
/
Parcel Profile
/
Print View
Search for Another Parcel
Parcel Profile
Historical Card
Sketches
Photos
Tax Map
Taxes
Print View
Print This Page
Address: 9331 HASKELL HILL RD
Parcel: 02003004000401
Parcel Profile
Address
9331 | HASKELL HILL | RD
Street Status
UNPAVED
School District
WATTSBURG SCHOOL
Acreage
2.2250
Classification
F
Land Use Code
20 - 79.99 ACRES
Legal Description
9331 HASKELL HILL RD LOT 1 2.225 AC NET | 2.43 AC GROSS | MB 1999-146
Square Feet
1768
Topo
LEVEL
Utility
WELL | SEPTIC
Zoning
Please contact your municipal zoning officer
Deed Book
2012
Deed Page
033502
2026 Tax Values
Land Value / Taxable
19,500 / 19,500.00
Building Value / Taxable
49,810 / 49,810.00
Total Value / Taxable
69,310 / 69,310.00
Clean & Green
Inactive
Homestead Status
Inactive
Farmstead Status
Inactive
Lerta Amount
0
Lerta Expiration Year
0
Residential Data
Card 1
Style
CONVENTIONAL
Basement
PART
Year Built
1900
Exterior Wall
ALUMINUM/VINYL
Total Living Area
1768
Full Baths
1
Half Baths
1
Fuel Type
PROPANE
Heating
CENTRAL
Heating System
FORCED AIR
Stories
2.0
Total Bedrooms
4
Total Family Rooms
0
Total Rooms
7
Fireplaces
0
Other Buildings & Yards
Description
Built
Width
Length
Area
FOUR SIDE CLOSED MTL POLE BLDG
1984
32
40
1280
FLAT BARN
1900
14
32
448
FLAT BARN ADDITION
1900
12
32
384
FRAME UTILITY SHED
1980
14
20
280
Sales History
Sale Date
Type
Price
Book / Page
Other Info
12/7/2012
LAND & BUILDING
75000
2012 / 033502
DEED
5/27/1971
0
1044 / 0323
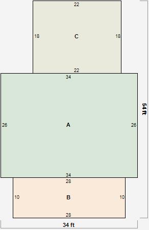
Parcel Sketches
Residential Card 1
A
MAIN
884 square feet
B
OFP OPEN FRAME PORCH
280 square feet
C
FR GR FRAME GARAGE
396 square feet
Parcel Images
Please note:
this tab is for informational purposes only and may not show all delinquencies, see the Taxes tab for more accurate delinquent taxes due.