Elected Officials
Courts
Departments
Initiatives
Open Government
About
Login / Register
Home
/
Property & Tax Records
/
Property Records
/
Property & Tax Search
/
Parcel Profile
/
Print View
Search for Another Parcel
Parcel Profile
Historical Card
Sketches
Photos
Tax Map
Taxes
Print View
Print This Page
Address: 15489 LYONS RD
Parcel: 02005020000600
Parcel Profile
Address
15489 | LYONS | RD
Street Status
PAVED
School District
WATTSBURG SCHOOL
Acreage
100.1000
Classification
F
Land Use Code
80 ACRES OR MORE
Legal Description
15489 LYONS RD 100.1 AC
Square Feet
1908
Topo
LEVEL
Utility
WELL | SEPTIC
Zoning
Please contact your municipal zoning officer
Deed Book
2016
Deed Page
018043
2026 Tax Values
Land Value / Taxable
128,800 / 128,800.00
Building Value / Taxable
68,750 / 68,750.00
Total Value / Taxable
197,550 / 197,550.00
Clean & Green
Inactive
Homestead Status
Inactive
Farmstead Status
Inactive
Lerta Amount
0
Lerta Expiration Year
0
Residential Data
Card 1
Style
CONVENTIONAL
Basement
FULL
Year Built
1870
Exterior Wall
FRAME
Total Living Area
1908
Full Baths
1
Half Baths
1
Fuel Type
GAS
Heating
CENTRAL
Heating System
HOT WATER
Stories
2.0
Total Bedrooms
4
Total Family Rooms
0
Total Rooms
8
Fireplaces
0
Other Buildings & Yards
Description
Built
Width
Length
Area
FOUR SIDE CLOSED MTL POLE BLDG
2023
0
0
2880
FRAME UTILITY SHED
2017
8
12
96
Sales History
Sale Date
Type
Price
Book / Page
Other Info
8/22/2016
LAND & BUILDING
0
2016 / 018043
SPECIAL WARRANTY DEED
8/6/2001
0
0798 / 1190
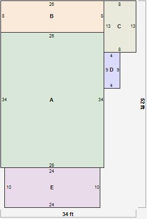
Parcel Sketches
Residential Card 1
A
MAIN
884 square feet
B
EFP ENCL FRAME PORCH
208 square feet
C
1S FR ONE STORY FRAME
104 square feet
D
FRBAY FRAME BAY
36 square feet
E
OFP OPEN FRAME PORCH
240 square feet
Parcel Images
Please note:
this tab is for informational purposes only and may not show all delinquencies, see the Taxes tab for more accurate delinquent taxes due.