Elected Officials
Courts
Departments
Initiatives
Open Government
About
Login / Register
Home
/
Property & Tax Records
/
Property Records
/
Property & Tax Search
/
Parcel Profile
/
Print View
Search for Another Parcel
Parcel Profile
Historical Card
Sketches
Photos
Tax Map
Taxes
Print View
Print This Page
Address: 13493 KLEMMER RD
Parcel: 02008016002300
Parcel Profile
Address
13493 | KLEMMER | RD
Street Status
UNPAVED
School District
WATTSBURG SCHOOL
Acreage
46.4600
Classification
F
Land Use Code
20 - 79.99 ACRES
Legal Description
13493 KLEMMER RD 46.46 AC CAL
Square Feet
1675
Topo
LEVEL
Utility
GAS | WELL | SEPTIC
Zoning
Please contact your municipal zoning officer
Deed Book
1169
Deed Page
2209
2025 Tax Values
Land Value / Taxable
59,800 / 59,800.00
Building Value / Taxable
91,500 / 91,500.00
Total Value / Taxable
151,300 / 151,300.00
Clean & Green
Inactive
Homestead Status
Inactive
Farmstead Status
Inactive
Lerta Amount
0
Lerta Expiration Year
0
Residential Data
Card 1
Style
CONVENTIONAL
Basement
FULL
Year Built
1900
Exterior Wall
ALUMINUM/VINYL
Total Living Area
1675
Full Baths
1
Half Baths
0
Fuel Type
PROPANE
Heating
NONE
Heating System
FORCED AIR
Stories
2.0
Total Bedrooms
3
Total Family Rooms
0
Total Rooms
8
Fireplaces
0
Other Buildings & Yards
Description
Built
Width
Length
Area
FRAME OR CB DETACHED GARAGE
1996
24
40
960
Sales History
Sale Date
Type
Price
Book / Page
Other Info
9/1/2004
LAND & BUILDING
150000
1169 / 2209
DEED
12/22/1989
0
0109 / 0016
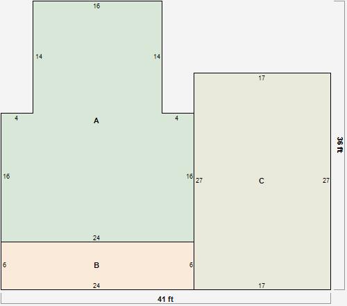
Parcel Sketches
Residential Card 1
A
MAIN
608 square feet
B
WDDCK WOOD DECKS
144 square feet
C
1S FR ONE STORY FRAME
459 square feet
Parcel Images