Elected Officials
Courts
Departments
Initiatives
Open Government
About
Login / Register
Home
/
Property & Tax Records
/
Property Records
/
Property & Tax Search
/
Parcel Profile
/
Print View
Search for Another Parcel
Parcel Profile
Historical Card
Sketches
Photos
Tax Map
Taxes
Print View
Print This Page
Address: 9195 HATCH HOLLOW RD
Parcel: 02010025000700
Parcel Profile
Address
9195 | HATCH HOLLOW | RD
Street Status
SEMI IMPROVED
School District
WATTSBURG SCHOOL
Acreage
174.4000
Classification
F
Land Use Code
80 ACRES OR MORE
Legal Description
9195 HATCH HOLLOW RD 174.4 AC
Square Feet
1824
Topo
ABOVE STREET
Utility
WELL | SEPTIC
Zoning
Please contact your municipal zoning officer
Deed Book
1452
Deed Page
0575
2026 Tax Values
Land Value / Taxable
253,800 / 112,700.00
Building Value / Taxable
47,190 / 47,190.00
Total Value / Taxable
300,990 / 159,890.00
Clean & Green
Active
Homestead Status
Active
Farmstead Status
Active
Lerta Amount
0
Lerta Expiration Year
0
Residential Data
Card 1
Style
OLD STYLE
Basement
PART
Year Built
1900
Exterior Wall
COMPOSITION
Total Living Area
1824
Full Baths
1
Half Baths
0
Fuel Type
OIL
Heating
CENTRAL
Heating System
HOT WATER
Stories
2.0
Total Bedrooms
4
Total Family Rooms
0
Total Rooms
8
Fireplaces
0
Other Buildings & Yards
Description
Built
Width
Length
Area
SINGLE WIDE MOBILE HOME
1968
12
62
744
SKIRTING
1958
0
0
180
FRAME UTILITY SHED
1945
70
20
1400
FOUR SIDE CLOSED MTL POLE BLDG
1972
40
70
2800
BANK BARN
1900
35
55
1925
1S LEAN TO
1900
20
55
1100
FRAME UTILITY SHED
1900
14
14
196
Sales History
Sale Date
Type
Price
Book / Page
Other Info
4/14/1982
0
1452 / 0575
5/27/1971
0
1044 / 0266
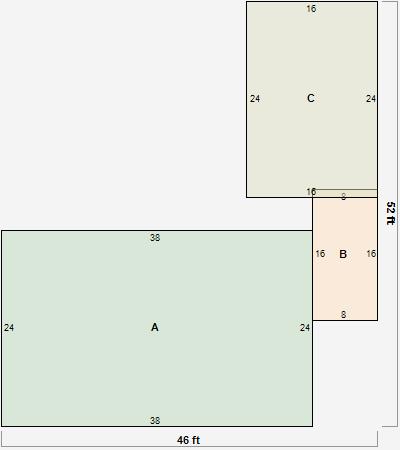
Parcel Sketches
Residential Card 1
A
MAIN
912 square feet
B
EFP ENCL FRAME PORCH
128 square feet
C
FR UT FRAME UTILITY BUILDING
384 square feet
Parcel Images
Please note:
this tab is for informational purposes only and may not show all delinquencies, see the Taxes tab for more accurate delinquent taxes due.