Elected Officials
Courts
Departments
Initiatives
Open Government
About
Login / Register
Home
/
Property & Tax Records
/
Property Records
/
Property & Tax Search
/
Parcel Profile
/
Print View
Search for Another Parcel
Parcel Profile
Historical Card
Sketches
Photos
Tax Map
Taxes
Print View
Print This Page
Address: 10074 FENNO RD
Parcel: 02012020001902
Parcel Profile
Address
10074 | FENNO | RD
Street Status
UNPAVED
School District
WATTSBURG SCHOOL
Acreage
3.3890
Classification
R
Land Use Code
SINGLE FAMILY
Legal Description
10074 FENNO RD LOT 1 3.389 AC
Square Feet
984
Topo
LEVEL
Utility
WELL | SEPTIC
Zoning
Please contact your municipal zoning officer
Deed Book
0710
Deed Page
0643
2025 Tax Values
Land Value / Taxable
21,600 / 21,600.00
Building Value / Taxable
39,600 / 39,600.00
Total Value / Taxable
61,200 / 61,200.00
Clean & Green
Inactive
Homestead Status
Active
Farmstead Status
Inactive
Lerta Amount
0
Lerta Expiration Year
0
Residential Data
Card 1
Style
RANCH
Basement
PART
Year Built
1870
Exterior Wall
ALUMINUM/VINYL
Total Living Area
984
Full Baths
1
Half Baths
0
Fuel Type
PROPANE
Heating
CENTRAL
Heating System
FORCED AIR
Stories
1.0
Total Bedrooms
2
Total Family Rooms
0
Total Rooms
5
Fireplaces
0
Other Buildings & Yards
Description
Built
Width
Length
Area
FRAME OR CB DETACHED GARAGE
1920
30
24
720
Sales History
Sale Date
Type
Price
Book / Page
Other Info
6/20/2000
LAND & BUILDING
36806
0710 / 0643
7/7/1999
0
0647 / 2161
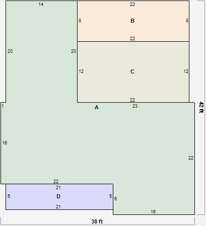
Parcel Sketches
Residential Card 1
A
MAIN
984 square feet
B
OFP OPEN FRAME PORCH
176 square feet
C
FR GR FRAME GARAGE
264 square feet
D
EFP ENCL FRAME PORCH
105 square feet
Parcel Images