Elected Officials
Courts
Departments
Initiatives
Open Government
About
Login / Register
Home
/
Property & Tax Records
/
Property Records
/
Property & Tax Search
/
Parcel Profile
/
Print View
Search for Another Parcel
Parcel Profile
Historical Card
Sketches
Photos
Tax Map
Taxes
Print View
Print This Page
Address: 13662 STEWART RD
Parcel: 03004008002900
Parcel Profile
Address
13662 | STEWART | RD
Street Status
SEMI IMPROVED
School District
CORRY AREA SCHOOL
Acreage
64.0500
Classification
F
Land Use Code
80 ACRES OR MORE
Legal Description
13662 STEWART RD 64.05 AC
Square Feet
1409
Topo
LEVEL
Utility
GAS | WELL | SEPTIC
Zoning
Please contact your municipal zoning officer
Deed Book
2016
Deed Page
012032
2026 Tax Values
Land Value / Taxable
54,300 / 54,300.00
Building Value / Taxable
54,760 / 54,760.00
Total Value / Taxable
109,060 / 109,060.00
Clean & Green
Inactive
Homestead Status
Inactive
Farmstead Status
Inactive
Lerta Amount
0
Lerta Expiration Year
0
Residential Data
Card 1
Style
CONVENTIONAL
Basement
FULL
Year Built
1920
Exterior Wall
ALUMINUM/VINYL
Total Living Area
1409
Full Baths
2
Half Baths
0
Fuel Type
GAS
Heating
CENTRAL
Heating System
HOT WATER
Stories
1.5
Total Bedrooms
4
Total Family Rooms
0
Total Rooms
7
Fireplaces
0
Other Buildings & Yards
Description
Built
Width
Length
Area
FRAME OR CB DETACHED GARAGE
1950
24
36
864
FRAME UTILITY SHED
1930
12
12
144
FRAME UTILITY SHED
1930
10
12
120
1S LEAN TO
1930
4
12
48
FLAT BARN
1900
30
88
2640
Sales History
Sale Date
Type
Price
Book / Page
Other Info
6/13/2016
LAND & BUILDING
165000
2016 / 012032
SPECIAL WARRANTY DEED
3/2/1949
LAND & BUILDING
0
0534 / 0327
DEED
3/1/1949
0
0534 / 0327
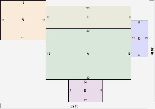
Parcel Sketches
Residential Card 1
A
MAIN
540 square feet
B
UNFIN BSMT BASEMENT UNFINISHED 1S FR ONE STORY FRAME
224 square feet
C
UNFIN BSMT BASEMENT UNFINISHED 1S FR ONE STORY FRAME
240 square feet
D
EFP ENCL FRAME PORCH
78 square feet
E
WDDCK WOOD DECKS
96 square feet
Parcel Images
Please note:
this tab is for informational purposes only and may not show all delinquencies, see the Taxes tab for more accurate delinquent taxes due.