Elected Officials
Courts
Departments
Initiatives
Open Government
About
Login / Register
Home
/
Property & Tax Records
/
Property Records
/
Property & Tax Search
/
Parcel Profile
/
Print View
Search for Another Parcel
Parcel Profile
Historical Card
Sketches
Photos
Tax Map
Taxes
Print View
Print This Page
Address: 12239 LOVELL RD
Parcel: 03006017000100
Parcel Profile
Address
12239 | LOVELL | RD
Street Status
UNPAVED
School District
CORRY AREA SCHOOL
Acreage
48.3600
Classification
F
Land Use Code
20 - 79.99 ACRES
Legal Description
12239 LOVELL RD 48.36 AC
Square Feet
1632
Topo
ROLLING
Utility
GAS | WELL | SEPTIC
Zoning
Please contact your municipal zoning officer
Deed Book
2018
Deed Page
015721
2025 Tax Values
Land Value / Taxable
46,500 / 46,500.00
Building Value / Taxable
34,200 / 34,200.00
Total Value / Taxable
80,700 / 80,700.00
Clean & Green
Inactive
Homestead Status
Inactive
Farmstead Status
Inactive
Lerta Amount
0
Lerta Expiration Year
0
Residential Data
Card 1
Style
OLD STYLE
Basement
PART
Year Built
1890
Exterior Wall
FRAME
Total Living Area
1632
Full Baths
1
Half Baths
0
Fuel Type
COAL/WOOD
Heating
NON CENTRAL
Heating System
NONE
Stories
2.0
Total Bedrooms
2
Total Family Rooms
0
Total Rooms
6
Fireplaces
0
Other Buildings & Yards
No OBY Data Found
Sales History
Sale Date
Type
Price
Book / Page
Other Info
8/3/2018
LAND & BUILDING
0
2018 / 015721
DEED
5/18/2009
LAND & BUILDING
0
1562 / 0618
DEED
2/4/1994
0
0318 / 0202
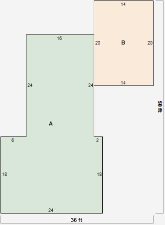
Parcel Sketches
Residential Card 1
A
MAIN
816 square feet
B
EFP ENCL FRAME PORCH
280 square feet
Parcel Images