Elected Officials
Courts
Departments
Initiatives
Open Government
About
Login / Register
Home
/
Property & Tax Records
/
Property Records
/
Property & Tax Search
/
Parcel Profile
/
Print View
Search for Another Parcel
Parcel Profile
Historical Card
Sketches
Photos
Tax Map
Taxes
Print View
Print This Page
Address: 18419 ELGIN RD
Parcel: 03006019000100
Parcel Profile
Address
18419 | ELGIN | RD
Street Status
SEMI IMPROVED
School District
CORRY AREA SCHOOL
Acreage
2.0220
Classification
R
Land Use Code
SINGLE FAMILY
Legal Description
18419 ELGIN RD 238 X 265 IRR | 0.859 AC PCL 12-9-8-5 HAS 1.163 AC
Square Feet
952
Topo
BELOW STREET | ROLLING
Utility
GAS | WELL | SEPTIC
Zoning
Please contact your municipal zoning officer
Deed Book
1124
Deed Page
0126
2026 Tax Values
Land Value / Taxable
11,500 / 11,500.00
Building Value / Taxable
25,230 / 25,230.00
Total Value / Taxable
36,730 / 36,730.00
Clean & Green
Inactive
Homestead Status
Inactive
Farmstead Status
Inactive
Lerta Amount
0
Lerta Expiration Year
0
Residential Data
Card 1
Style
CONVENTIONAL
Basement
FULL
Year Built
1900
Exterior Wall
COMPOSITION
Total Living Area
952
Full Baths
1
Half Baths
0
Fuel Type
OIL
Heating
CENTRAL
Heating System
FORCED AIR
Stories
1.5
Total Bedrooms
4
Total Family Rooms
0
Total Rooms
8
Fireplaces
0
Other Buildings & Yards
Description
Built
Width
Length
Area
FRAME OR CB DETACHED GARAGE
1920
22
32
704
Sales History
Sale Date
Type
Price
Book / Page
Other Info
4/12/2004
LAND & BUILDING
42000
1124 / 0126
WARRANTY/SURVIVORSHIP DEED
12/13/2000
LAND & BUILDING
39000
742 / 2302
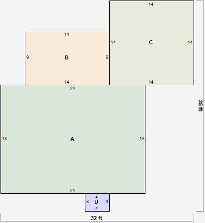
Parcel Sketches
Residential Card 1
A
MAIN
432 square feet
B
EFP ENCL FRAME PORCH
126 square feet
C
1S FR ONE STORY FRAME
196 square feet
D
EFP ENCL FRAME PORCH
12 square feet
Parcel Images
Please note:
this tab is for informational purposes only and may not show all delinquencies, see the Taxes tab for more accurate delinquent taxes due.