Elected Officials
Courts
Departments
Initiatives
Open Government
About
Login / Register
Home
/
Property & Tax Records
/
Property Records
/
Property & Tax Search
/
Parcel Profile
/
Print View
Search for Another Parcel
Parcel Profile
Historical Card
Sketches
Photos
Tax Map
Taxes
Print View
Print This Page
Address: 12940 ORMSBEE RD
Parcel: 03009034001200
Parcel Profile
Address
12940 | ORMSBEE | RD
Street Status
PAVED
School District
CORRY AREA SCHOOL
Acreage
18.0300
Classification
F
Land Use Code
10-19.99 ACRES
Legal Description
12940 ORMSBEE RD 18.03 AC
Square Feet
3948
Topo
LEVEL
Utility
WELL | SEPTIC
Zoning
Please contact your municipal zoning officer
Deed Book
2024
Deed Page
001239
2026 Tax Values
Land Value / Taxable
24,500 / 24,500.00
Building Value / Taxable
149,300 / 149,300.00
Total Value / Taxable
173,800 / 173,800.00
Clean & Green
Inactive
Homestead Status
Inactive
Farmstead Status
Inactive
Lerta Amount
0
Lerta Expiration Year
0
Residential Data
Card 1
Style
CAPE
Basement
FULL
Year Built
1920
Exterior Wall
BLOCK
Total Living Area
1260
Full Baths
1
Half Baths
0
Fuel Type
COAL/WOOD
Heating
NON CENTRAL
Heating System
FORCED AIR
Stories
1.5
Total Bedrooms
3
Total Family Rooms
1
Total Rooms
7
Fireplaces
0
Card 2
Style
CONVENTIONAL
Basement
FULL
Year Built
2024
Exterior Wall
ALUMINUM/VINYL
Total Living Area
2688
Full Baths
1
Half Baths
0
Fuel Type
COAL/WOOD
Heating
NON CENTRAL
Heating System
NONE
Stories
2.0
Total Bedrooms
3
Total Family Rooms
0
Total Rooms
6
Fireplaces
1
Other Buildings & Yards
Description
Built
Width
Length
Area
FLAT BARN
2025
0
0
1200
Sales History
Sale Date
Type
Price
Book / Page
Other Info
1/25/2024
LAND & BUILDING
35000
2024 / 001239
DEED
1/7/2010
LAND & BUILDING
25000
2010 / 000448
SPECIAL WARRANTY DEED
1/7/2010
LAND & BUILDING
0
2010 / 000447
DEED
8/26/1972
0
1081 / 0637
Parcel Sketches
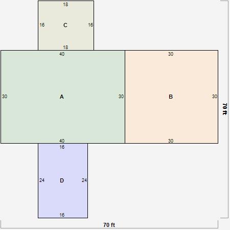
Residential Card 1
A
MAIN
720 square feet
B
CANPY CANOPY
240 square feet
C
EFP ENCL FRAME PORCH
104 square feet
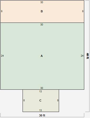
Residential Card 2
A
MAIN
1200 square feet
B
FR GR FRAME GARAGE
900 square feet
C
1S FR ONE STORY FRAME
288 square feet
D
OFP OPEN FRAME PORCH
384 square feet
Parcel Images
Please note:
this tab is for informational purposes only and may not show all delinquencies, see the Taxes tab for more accurate delinquent taxes due.