Elected Officials
Courts
Departments
Initiatives
Open Government
About
Login / Register
Home
/
Property & Tax Records
/
Property Records
/
Property & Tax Search
/
Parcel Profile
/
Print View
Search for Another Parcel
Parcel Profile
Historical Card
Sketches
Photos
Tax Map
Taxes
Print View
Print This Page
Address: 20400 SPARTANSBURG HWY
Parcel: 03010015000702
Parcel Profile
Address
20400 | SPARTANSBURG | HWY
Street Status
PAVED
School District
CORRY AREA SCHOOL
Acreage
37.4840
Classification
R
Land Use Code
SINGLE FAMILY
Legal Description
20400 SPARTANSBURG HWY LOTS 4,5,6 37.484 AC NET
Square Feet
1616
Topo
BELOW STREET
Utility
WELL | SEPTIC
Zoning
Please contact your municipal zoning officer
Deed Book
2018
Deed Page
014380
2026 Tax Values
Land Value / Taxable
36,700 / 36,700.00
Building Value / Taxable
66,000 / 66,000.00
Total Value / Taxable
102,700 / 102,700.00
Clean & Green
Inactive
Homestead Status
Inactive
Farmstead Status
Inactive
Lerta Amount
0
Lerta Expiration Year
0
Residential Data
Card 1
Style
CAPE
Basement
PART
Year Built
1867
Exterior Wall
ALUMINUM/VINYL
Total Living Area
1616
Full Baths
2
Half Baths
0
Fuel Type
OIL
Heating
CENTRAL
Heating System
HOT WATER
Stories
1.5
Total Bedrooms
3
Total Family Rooms
0
Total Rooms
7
Fireplaces
0
Other Buildings & Yards
Description
Built
Width
Length
Area
FOUR SIDE CLOSED MTL POLE BLDG
2007
30
48
1440
CANOPY RF-ECONOMY
2012
13
48
624
CANOPY RF-ECONOMY
2012
13
48
624
CANOPY RF-ECONOMY
2014
13
56
728
Sales History
Sale Date
Type
Price
Book / Page
Other Info
7/18/2018
LAND & BUILDING
168000
2018 / 014380
SPECIAL WARRANTY DEED
4/11/2013
LAND & BUILDING
0
2013 / 008533
QUIT CLAIM DEED
9/14/2004
LAND & BUILDING
0
1173 / 0308
DEED
10/9/1979
0
1367 / 0500
10/9/1979
LAND & BUILDING
30000
1367 / 0050
DEED
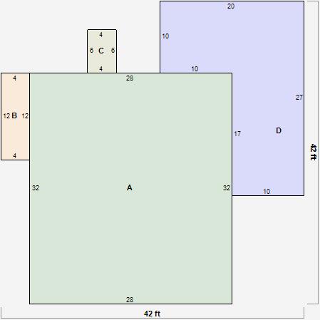
Parcel Sketches
Residential Card 1
A
MAIN
896 square feet
B
UNFIN BSMT BASEMENT UNFINISHED 1S FR ONE STORY FRAME
48 square feet
C
FR UT FRAME UTILITY BUILDING
24 square feet
D
OFP OPEN FRAME PORCH
370 square feet
Parcel Images
Please note:
this tab is for informational purposes only and may not show all delinquencies, see the Taxes tab for more accurate delinquent taxes due.