Elected Officials
Courts
Departments
Initiatives
Open Government
About
Login / Register
Home
/
Property & Tax Records
/
Property Records
/
Property & Tax Search
/
Parcel Profile
/
Print View
Search for Another Parcel
Parcel Profile
Historical Card
Sketches
Photos
Tax Map
Taxes
Print View
Print This Page
Address: 19925 HAMMOND RD
Parcel: 03010015001700
Parcel Profile
Address
19925 | HAMMOND | RD
Street Status
PAVED
School District
CORRY AREA SCHOOL
Acreage
4.6040
Classification
R
Land Use Code
MULTIPLE DWELLINGS
Legal Description
19925 HAMMOND RD LOT 1 4.604 AC
Square Feet
572
Topo
LEVEL
Utility
WELL | SEPTIC
Zoning
Please contact your municipal zoning officer
Deed Book
2020
Deed Page
021927
2026 Tax Values
Land Value / Taxable
14,300 / 14,300.00
Building Value / Taxable
74,400 / 74,400.00
Total Value / Taxable
88,700 / 88,700.00
Clean & Green
Inactive
Homestead Status
Inactive
Farmstead Status
Inactive
Lerta Amount
0
Lerta Expiration Year
0
Residential Data
Card 1
Style
BUNGALOW
Basement
FULL
Year Built
1900
Exterior Wall
FRAME
Total Living Area
572
Full Baths
1
Half Baths
0
Fuel Type
OIL
Heating
CENTRAL
Heating System
FORCED AIR
Stories
1.0
Total Bedrooms
1
Total Family Rooms
0
Total Rooms
4
Fireplaces
0
Other Buildings & Yards
Description
Built
Width
Length
Area
DOUBLE WIDE MOBILE HOME
1994
26
54
1404
FLAT BARN
1900
20
30
600
ONE SIDE OPEN WD POLE BLDG
1994
30
24
720
SKIRTING
1994
0
0
108
FR OR CB ATTACHED GARAGE
2022
24
30
720
Sales History
Sale Date
Type
Price
Book / Page
Other Info
10/20/2020
LAND & BUILDING
85000
2020 / 021927
SPECIAL WARRANTY DEED
6/15/2007
LAND & BUILDING
73000
1423 / 0705
WARRANTY/SURVIVORSHIP DEED
3/12/2004
LAND & BUILDING
0
1114 / 2046
QUIT CLAIM DEED
7/25/1990
0
0131 / 0391
7/25/1990
0
0131 / 0391
AFFIDAVIT
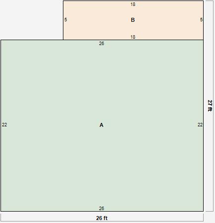
Parcel Sketches
Residential Card 1
A
MAIN
572 square feet
B
EFP ENCL FRAME PORCH
90 square feet
Parcel Images
Please note:
this tab is for informational purposes only and may not show all delinquencies, see the Taxes tab for more accurate delinquent taxes due.