Elected Officials
Courts
Departments
Initiatives
Open Government
About
Login / Register
Home
/
Property & Tax Records
/
Property Records
/
Property & Tax Search
/
Parcel Profile
/
Print View
Search for Another Parcel
Parcel Profile
Historical Card
Sketches
Photos
Tax Map
Taxes
Print View
Print This Page
Address: 21089 LINDSEY HOLLOW RD
Parcel: 03012013001500
Parcel Profile
Address
21089 | LINDSEY HOLLOW | RD
Street Status
PAVED
School District
CORRY AREA SCHOOL
Acreage
2.2034
Classification
R
Land Use Code
SINGLE FAMILY
Legal Description
21089 LINDSEY HOLLOW RD 2.2034 AC NET | 2.5137 AC GROSS
Square Feet
2714
Topo
LEVEL
Utility
ALL PUBLIC
Zoning
Please contact your municipal zoning officer
Deed Book
2019
Deed Page
026245
2026 Tax Values
Land Value / Taxable
8,400 / 8,400.00
Building Value / Taxable
61,600 / 61,600.00
Total Value / Taxable
70,000 / 70,000.00
Clean & Green
Inactive
Homestead Status
Inactive
Farmstead Status
Inactive
Lerta Amount
0
Lerta Expiration Year
0
Residential Data
Card 1
Style
OLD STYLE
Basement
FULL
Year Built
1900
Exterior Wall
FRAME
Total Living Area
2714
Full Baths
2
Half Baths
0
Fuel Type
GAS
Heating
CENTRAL A/C
Heating System
FORCED AIR
Stories
2.0
Total Bedrooms
4
Total Family Rooms
1
Total Rooms
8
Fireplaces
0
Other Buildings & Yards
No OBY Data Found
Sales History
Sale Date
Type
Price
Book / Page
Other Info
12/19/2019
LAND & BUILDING
110000
2019 / 026245
SPECIAL WARRANTY DEED
6/18/2014
LAND & BUILDING
70000
2014 / 012122
SPECIAL WARRANTY DEED
9/18/2012
LAND & BUILDING
0
2012 / 025707
SPECIAL WARRANTY DEED
1/27/1998
0
0539 / 1921
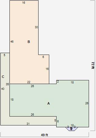
Parcel Sketches
Residential Card 1
A
MAIN
936 square feet
B
1S FR ONE STORY FRAME
832 square feet
C
OFP OPEN FRAME PORCH
330 square feet
D
FRBAY FRAME BAY
10 square feet
Parcel Images
Please note:
this tab is for informational purposes only and may not show all delinquencies, see the Taxes tab for more accurate delinquent taxes due.