Elected Officials
Courts
Departments
Initiatives
Open Government
About
Login / Register
Home
/
Property & Tax Records
/
Property Records
/
Property & Tax Search
/
Parcel Profile
/
Print View
Search for Another Parcel
Parcel Profile
Historical Card
Sketches
Photos
Tax Map
Taxes
Print View
Print This Page
Address: 11791 CONCORD RD
Parcel: 03018026001000
Parcel Profile
Address
11791 | CONCORD | RD
Street Status
PAVED
School District
CORRY AREA SCHOOL
Acreage
89.0000
Classification
F
Land Use Code
80 ACRES OR MORE
Legal Description
11791 CONCORD RD 89 AC
Square Feet
2181
Topo
ABOVE STREET | ROLLING
Utility
WELL | SEPTIC
Zoning
Please contact your municipal zoning officer
Deed Book
2012
Deed Page
034106
2026 Tax Values
Land Value / Taxable
69,500 / 69,500.00
Building Value / Taxable
103,400 / 103,400.00
Total Value / Taxable
172,900 / 172,900.00
Clean & Green
Inactive
Homestead Status
Active
Farmstead Status
Inactive
Lerta Amount
0
Lerta Expiration Year
0
Residential Data
Card 1
Style
CONVENTIONAL
Basement
FULL
Year Built
1930
Exterior Wall
ALUMINUM/VINYL
Total Living Area
2181
Full Baths
1
Half Baths
1
Fuel Type
OIL
Heating
CENTRAL
Heating System
FORCED AIR
Stories
1.0
Total Bedrooms
2
Total Family Rooms
0
Total Rooms
5
Fireplaces
1
Other Buildings & Yards
Description
Built
Width
Length
Area
FOUR SIDE CLOSED MTL POLE BLDG
2016
40
60
2400
Sales History
Sale Date
Type
Price
Book / Page
Other Info
12/17/2012
LAND & BUILDING
210000
2012 / 034106
SPECIAL WARRANTY DEED
8/19/2009
LAND & BUILDING
0
1584 / 1962
QUIT CLAIM DEED
6/30/1993
0
0277 / 1807
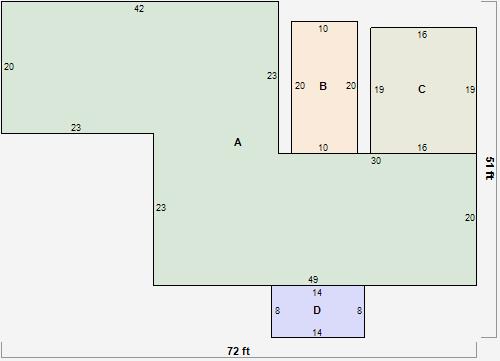
Parcel Sketches
Residential Card 1
A
MAIN
1877 square feet
B
WDDCK WOOD DECKS
200 square feet
C
1S FR ONE STORY FRAME
304 square feet
D
OFP OPEN FRAME PORCH
112 square feet
Parcel Images
Please note:
this tab is for informational purposes only and may not show all delinquencies, see the Taxes tab for more accurate delinquent taxes due.