Elected Officials
Courts
Departments
Initiatives
Open Government
About
Login / Register
Home
/
Property & Tax Records
/
Property Records
/
Property & Tax Search
/
Parcel Profile
/
Print View
Search for Another Parcel
Parcel Profile
Historical Card
Sketches
Photos
Tax Map
Taxes
Print View
Print This Page
Address: 20380 ROUTE 89
Parcel: 03019033001300
Parcel Profile
Address
20380 | ROUTE 89
Street Status
PAVED
School District
CORRY AREA SCHOOL
Acreage
104.0000
Classification
F
Land Use Code
80 ACRES OR MORE
Legal Description
20380 ROUTE 89 104 AC NET
Square Feet
1443
Topo
LEVEL
Utility
WELL | SEPTIC
Zoning
Please contact your municipal zoning officer
Deed Book
2021
Deed Page
023637
2025 Tax Values
Land Value / Taxable
92,100 / 63,800.00
Building Value / Taxable
65,100 / 65,100.00
Total Value / Taxable
157,200 / 128,900.00
Clean & Green
Active
Homestead Status
Active
Farmstead Status
Inactive
Lerta Amount
0
Lerta Expiration Year
0
Residential Data
Card 1
Style
CONVENTIONAL
Basement
PART
Year Built
1880
Exterior Wall
COMPOSITION
Total Living Area
1443
Full Baths
1
Half Baths
0
Fuel Type
COAL/WOOD
Heating
CENTRAL
Heating System
HOT WATER
Stories
1.5
Total Bedrooms
4
Total Family Rooms
0
Total Rooms
7
Fireplaces
0
Other Buildings & Yards
Description
Built
Width
Length
Area
BANK BARN
1940
60
45
2700
1S LEAN TO
1940
12
35
420
FRAME UTILITY SHED
1960
10
10
100
ONE SIDE OPEN WD POLE BLDG
1950
15
30
450
BANK BARN
1950
28
28
784
Sales History
Sale Date
Type
Price
Book / Page
Other Info
9/2/2021
LAND & BUILDING
0
2021 / 023637
SPECIAL WARRANTY DEED
6/5/1980
0
1388 / 0124
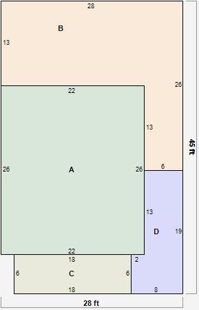
Parcel Sketches
Residential Card 1
A
MAIN
572 square feet
B
1S FR ONE STORY FRAME
442 square feet
C
OFP OPEN FRAME PORCH
108 square feet
D
OFP OPEN FRAME PORCH
126 square feet
Parcel Images