Address: 11788 CHERRY HILL RD   Parcel: 04004007001600
Parcel Profile
Address11788 | CHERRY HILL | RD
Street StatusPAVED
School DistrictNORTHWESTERN SCHOOL
Acreage10.8600
ClassificationF
Land Use Code10-19.99 ACRES
Legal Description11788 CHERRY HILL RD 10.869 AC NET | 11.672 AC GROSS
Square Feet1436
TopoLEVEL | ROLLING
UtilityWELL | SEPTIC
ZoningPlease contact your municipal zoning officer
Deed Book2021
Deed Page013308
2026 Tax Values
Land Value / Taxable31,500 / 27,100.00
Building Value / Taxable73,300 / 73,300.00
Total Value / Taxable104,800 / 100,400.00
Clean & GreenActive
Homestead StatusInactive
Farmstead StatusInactive
Lerta Amount0
Lerta Expiration Year0
Residential Data
Card 1
     StyleOLD STYLE
     BasementPART
     Year Built1860
     Exterior WallALUMINUM/VINYL
     Total Living Area1436
     Full Baths1
     Half Baths0
     Fuel TypeGAS
     HeatingCENTRAL
     Heating SystemFORCED AIR
     Stories2.0
     Total Bedrooms3
     Total Family Rooms1
     Total Rooms9
     Fireplaces0
Other Buildings & Yards
DescriptionBuiltWidthLengthArea
 FOUR SIDE CLOSED MTL POLE BLDG 2023 0 0 1600
Sales History
Sale DateTypePriceBook / PageOther Info
5/27/2021LAND & BUILDING02021 / 013308QUIT CLAIM DEED
5/8/2018LAND & BUILDING500002018 / 008682SPECIAL WARRANTY DEED
2/15/2018LAND & BUILDING265002018 / 003046TAX DEED
5/7/2008LAND & BUILDING01493 / 0382FIDUCIARY DEED
2/28/1978 01296 / 0461 



Parcel Sketches

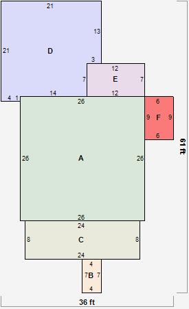
Residential Card 1

Residential Card 1
AMAIN676 square feet
B OFP OPEN FRAME PORCH 28 square feet
C EFP ENCL FRAME PORCH 192 square feet
DFR GR FRAME GARAGE 403 square feet
E 1S FR ONE STORY FRAME 84 square feet
F OFP OPEN FRAME PORCH 54 square feet

Parcel Images

parcel photoparcel photo