Elected Officials
Courts
Departments
Initiatives
Open Government
About
Login / Register
Home
/
Property & Tax Records
/
Property Records
/
Property & Tax Search
/
Parcel Profile
/
Print View
Search for Another Parcel
Parcel Profile
Historical Card
Sketches
Photos
Tax Map
Taxes
Print View
Print This Page
Address: 8680 LEXINGTON RD
Parcel: 04005010000300
Parcel Profile
Address
8680 | LEXINGTON | RD
Street Status
PAVED
School District
NORTHWESTERN SCHOOL
Acreage
10.2500
Classification
F
Land Use Code
10-19.99 ACRES
Legal Description
8680 LEXINGTON RD 10.25 AC
Square Feet
1960
Topo
LEVEL
Utility
WELL | SEPTIC
Zoning
Please contact your municipal zoning officer
Deed Book
2014
Deed Page
003507
2026 Tax Values
Land Value / Taxable
28,700 / 28,700.00
Building Value / Taxable
76,800 / 76,800.00
Total Value / Taxable
105,500 / 105,500.00
Clean & Green
Inactive
Homestead Status
Active
Farmstead Status
Inactive
Lerta Amount
0
Lerta Expiration Year
0
Residential Data
Card 1
Style
OLD STYLE
Basement
PART
Year Built
1900
Exterior Wall
ALUMINUM/VINYL
Total Living Area
1960
Full Baths
1
Half Baths
1
Fuel Type
OIL
Heating
CENTRAL
Heating System
FORCED AIR
Stories
2.0
Total Bedrooms
3
Total Family Rooms
1
Total Rooms
6
Fireplaces
0
Other Buildings & Yards
Description
Built
Width
Length
Area
FRAME OR CB DETACHED GARAGE
1900
18
34
612
FLAT BARN
1900
26
40
1040
CARPORT
1900
10
26
260
FOUR SIDE CLOSED WD POLE BLDG
1986
24
60
1440
Sales History
Sale Date
Type
Price
Book / Page
Other Info
2/26/2014
LAND & BUILDING
0
2014 / 003507
QUIT CLAIM DEED
9/5/2006
LAND & BUILDING
0
1360 / 1319
DEED
8/9/1968
0
0988 / 0454
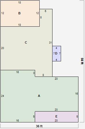
Parcel Sketches
Residential Card 1
A
MAIN
704 square feet
B
WDDCK WOOD DECKS
216 square feet
C
UNFIN BSMT BASEMENT UNFINISHED 1S FR ONE STORY FRAME
552 square feet
D
WDDCK WOOD DECKS
28 square feet
E
OFP OPEN FRAME PORCH
100 square feet
Parcel Images
Please note:
this tab is for informational purposes only and may not show all delinquencies, see the Taxes tab for more accurate delinquent taxes due.