Elected Officials
Courts
Departments
Initiatives
Open Government
About
Login / Register
Home
/
Property & Tax Records
/
Property Records
/
Property & Tax Search
/
Parcel Profile
/
Print View
Search for Another Parcel
Parcel Profile
Historical Card
Sketches
Photos
Tax Map
Taxes
Print View
Print This Page
Address: 10840 BOWMANTOWN RD
Parcel: 04005012000100
Parcel Profile
Address
10840 | BOWMANTOWN | RD
Street Status
PAVED
School District
NORTHWESTERN SCHOOL
Acreage
10.2800
Classification
F
Land Use Code
10-19.99 ACRES
Legal Description
10840 BOWMANTOWN RD 10.283 AC
Square Feet
1006
Topo
ROLLING
Utility
WELL | SEPTIC
Zoning
Please contact your municipal zoning officer
Deed Book
0231
Deed Page
0812
2026 Tax Values
Land Value / Taxable
26,100 / 25,000.00
Building Value / Taxable
45,040 / 45,040.00
Total Value / Taxable
71,140 / 70,040.00
Clean & Green
Active
Homestead Status
Active
Farmstead Status
Inactive
Lerta Amount
0
Lerta Expiration Year
0
Residential Data
Card 1
Style
BUNGALOW
Basement
FULL
Year Built
1937
Exterior Wall
FRAME
Total Living Area
1006
Full Baths
1
Half Baths
0
Fuel Type
OIL
Heating
CENTRAL
Heating System
FORCED AIR
Stories
1.0
Total Bedrooms
2
Total Family Rooms
1
Total Rooms
6
Fireplaces
0
Other Buildings & Yards
Description
Built
Width
Length
Area
FRAME OR CB DETACHED GARAGE
1937
20
24
480
FRAME UTILITY SHED
2008
10
12
120
Sales History
Sale Date
Type
Price
Book / Page
Other Info
9/22/1992
0
0231 / 0812
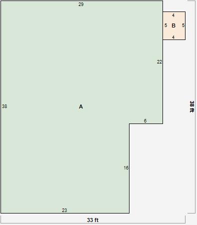
Parcel Sketches
Residential Card 1
A
MAIN
1006 square feet
B
WDDCK WOOD DECKS
20 square feet
Parcel Images
Please note:
this tab is for informational purposes only and may not show all delinquencies, see the Taxes tab for more accurate delinquent taxes due.