Elected Officials
Courts
Departments
Initiatives
Open Government
About
Login / Register
Home
/
Property & Tax Records
/
Property Records
/
Property & Tax Search
/
Parcel Profile
/
Print View
Search for Another Parcel
Parcel Profile
Historical Card
Sketches
Photos
Tax Map
Taxes
Print View
Print This Page
Address: 10025 OLD ALBION RD
Parcel: 04007021000100
Parcel Profile
Address
10025 | OLD ALBION | RD
Street Status
PAVED
School District
NORTHWESTERN SCHOOL
Acreage
1.0320
Classification
R
Land Use Code
SINGLE FAMILY
Legal Description
10025 OLD ALBION RD LOT A 1.032 AC
Square Feet
1295
Topo
LEVEL
Utility
GAS | WELL | SEPTIC
Zoning
Please contact your municipal zoning officer
Deed Book
2011
Deed Page
010450
2026 Tax Values
Land Value / Taxable
22,100 / 22,100.00
Building Value / Taxable
54,600 / 54,600.00
Total Value / Taxable
76,700 / 76,700.00
Clean & Green
Inactive
Homestead Status
Inactive
Farmstead Status
Inactive
Lerta Amount
0
Lerta Expiration Year
0
Residential Data
Card 1
Style
OLD STYLE
Basement
PART
Year Built
1900
Exterior Wall
ALUMINUM/VINYL
Total Living Area
1295
Full Baths
1
Half Baths
0
Fuel Type
GAS
Heating
CENTRAL
Heating System
FORCED AIR
Stories
1.0
Total Bedrooms
2
Total Family Rooms
1
Total Rooms
7
Fireplaces
0
Other Buildings & Yards
Description
Built
Width
Length
Area
FRAME UTILITY SHED
1900
10
20
200
Sales History
Sale Date
Type
Price
Book / Page
Other Info
5/11/2011
LAND & BUILDING
0
2011 / 010450
CORRECTIVE DEED
11/1/2010
0
2010 / 027125
8/24/2004
LAND & BUILDING
0
1167 / 0160
DEED
6/21/2002
LAND & BUILDING
50195
892 / 1980
6/1/1988
0
0052 / 0282
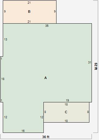
Parcel Sketches
Residential Card 1
A
MAIN
1295 square feet
B
EFP ENCL FRAME PORCH
189 square feet
C
OFP OPEN FRAME PORCH
144 square feet
Parcel Images
Please note:
this tab is for informational purposes only and may not show all delinquencies, see the Taxes tab for more accurate delinquent taxes due.