Elected Officials
Courts
Departments
Initiatives
Open Government
About
Login / Register
Home
/
Property & Tax Records
/
Property Records
/
Property & Tax Search
/
Parcel Profile
/
Print View
Search for Another Parcel
Parcel Profile
Historical Card
Sketches
Photos
Tax Map
Taxes
Print View
Print This Page
Address: 10801 THRASHER RD
Parcel: 04007022000200
Parcel Profile
Address
10801 | THRASHER | RD
Street Status
UNPAVED
School District
NORTHWESTERN SCHOOL
Acreage
17.5000
Classification
F
Land Use Code
10-19.99 ACRES
Legal Description
10801 THRASHER RD 17.5 AC
Square Feet
2880
Topo
LEVEL | ROLLING
Utility
GAS | WELL | SEPTIC
Zoning
Please contact your municipal zoning officer
Deed Book
0620
Deed Page
0250
2026 Tax Values
Land Value / Taxable
33,400 / 33,400.00
Building Value / Taxable
183,630 / 183,630.00
Total Value / Taxable
217,030 / 217,030.00
Clean & Green
Inactive
Homestead Status
Active
Farmstead Status
Active
Lerta Amount
0
Lerta Expiration Year
0
Residential Data
Card 1
Style
OLD STYLE
Basement
FULL
Year Built
1900
Exterior Wall
ALUMINUM/VINYL
Total Living Area
2880
Full Baths
1
Half Baths
1
Fuel Type
GAS
Heating
CENTRAL
Heating System
FORCED AIR
Stories
2.0
Total Bedrooms
4
Total Family Rooms
0
Total Rooms
8
Fireplaces
0
Other Buildings & Yards
Description
Built
Width
Length
Area
FOUR SIDE CLOSED MTL POLE BLDG
1980
28
48
1344
FOUR SIDE CLOSED WD POLE BLDG
1980
14
48
672
FOUR SIDE CLOSED WD POLE BLDG
1996
30
60
1800
1S LEAN TO
1996
10
24
240
FOUR SIDE CLOSED WD POLE BLDG
1996
50
80
4000
Sales History
Sale Date
Type
Price
Book / Page
Other Info
2/26/1999
0
0620 / 0250
7/6/1995
LAND & BUILDING
150000
391 / 1646
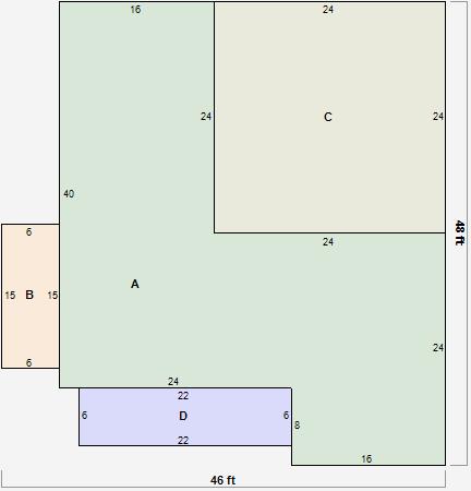
Parcel Sketches
Residential Card 1
A
MAIN
1152 square feet
B
OFP OPEN FRAME PORCH
90 square feet
C
1S FR ONE STORY FRAME
576 square feet
D
OFP OPEN FRAME PORCH
132 square feet
Parcel Images
Please note:
this tab is for informational purposes only and may not show all delinquencies, see the Taxes tab for more accurate delinquent taxes due.