Elected Officials
Courts
Departments
Initiatives
Open Government
About
Login / Register
Home
/
Property & Tax Records
/
Property Records
/
Property & Tax Search
/
Parcel Profile
/
Print View
Search for Another Parcel
Parcel Profile
Historical Card
Sketches
Photos
Tax Map
Taxes
Print View
Print This Page
Address: 10334 JOHN WILLIAMS AVE
Parcel: 04008058000600
Parcel Profile
Address
10334 | JOHN WILLIAMS | AVE
Street Status
PAVED
School District
NORTHWESTERN SCHOOL
Acreage
0.3444
Classification
R
Land Use Code
SINGLE FAMILY
Legal Description
10334 JOHN WILLIAMS AVE 100 X 150
Square Feet
1964
Topo
LEVEL
Utility
PUBLIC WATER | GAS | SEPTIC
Zoning
Please contact your municipal zoning officer
Deed Book
0359
Deed Page
1813
2026 Tax Values
Land Value / Taxable
19,300 / 19,300.00
Building Value / Taxable
140,700 / 140,700.00
Total Value / Taxable
160,000 / 160,000.00
Clean & Green
Inactive
Homestead Status
Inactive
Farmstead Status
Inactive
Lerta Amount
0
Lerta Expiration Year
0
Residential Data
Card 1
Style
RANCH
Basement
FULL
Year Built
2013
Exterior Wall
ALUMINUM/VINYL
Total Living Area
1964
Full Baths
2
Half Baths
0
Fuel Type
GAS
Heating
CENTRAL A/C
Heating System
FORCED AIR
Stories
1.0
Total Bedrooms
3
Total Family Rooms
0
Total Rooms
6
Fireplaces
0
Other Buildings & Yards
Description
Built
Width
Length
Area
FLAT BARN
1917
20
24
480
FLAT BARN ADDITION
1930
20
24
480
Sales History
Sale Date
Type
Price
Book / Page
Other Info
10/25/1994
0
0359 / 1813
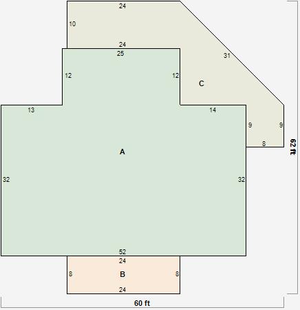
Parcel Sketches
Residential Card 1
A
MAIN
1964 square feet
B
OFP OPEN FRAME PORCH
192 square feet
C
WDDCK WOOD DECKS
554 square feet
Parcel Images
Please note:
this tab is for informational purposes only and may not show all delinquencies, see the Taxes tab for more accurate delinquent taxes due.