Elected Officials
Courts
Departments
Initiatives
Open Government
About
Login / Register
Home
/
Property & Tax Records
/
Property Records
/
Property & Tax Search
/
Parcel Profile
/
Print View
Search for Another Parcel
Parcel Profile
Historical Card
Sketches
Photos
Tax Map
Taxes
Print View
Print This Page
Address: 9865 ROUTE 215
Parcel: 04009028001900
Parcel Profile
Address
9865 | ROUTE 215
Street Status
PAVED
School District
NORTHWESTERN SCHOOL
Acreage
37.8200
Classification
F
Land Use Code
20 - 79.99 ACRES
Legal Description
9865 ROUTE 215 LOT 2 37.82AC NET | 38.293 AC GROSS
Square Feet
1430
Topo
ROLLING
Utility
GAS | WELL | SEPTIC
Zoning
Please contact your municipal zoning officer
Deed Book
2024
Deed Page
018218
2026 Tax Values
Land Value / Taxable
46,900 / 32,600.00
Building Value / Taxable
69,200 / 69,200.00
Total Value / Taxable
116,100 / 101,800.00
Clean & Green
Active
Homestead Status
Active
Farmstead Status
Inactive
Lerta Amount
0
Lerta Expiration Year
0
Residential Data
Card 1
Style
OLD STYLE
Basement
PART
Year Built
1900
Exterior Wall
ALUMINUM/VINYL
Total Living Area
1430
Full Baths
1
Half Baths
0
Fuel Type
GAS
Heating
CENTRAL
Heating System
FORCED AIR
Stories
2.0
Total Bedrooms
4
Total Family Rooms
0
Total Rooms
7
Fireplaces
1
Other Buildings & Yards
Description
Built
Width
Length
Area
FRAME OR CB DETACHED GARAGE
1995
24
24
576
FRAME UTILITY SHED
1995
12
24
288
1S FRAME OR METAL POULTRY HSE
1995
17
17
289
Sales History
Sale Date
Type
Price
Book / Page
Other Info
11/5/2024
LAND & BUILDING
0
2024 / 018218
QUIT/CLAIM SURVIVORSHIP
4/15/1987
0
0005 / 2156
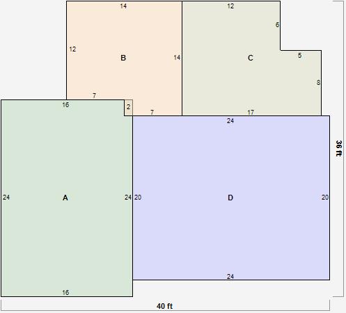
Parcel Sketches
Residential Card 1
A
MAIN
384 square feet
B
1S FR ONE STORY FRAME
182 square feet
C
WDDCK WOOD DECKS
208 square feet
D
1S FR ONE STORY FRAME
480 square feet
Parcel Images
Please note:
this tab is for informational purposes only and may not show all delinquencies, see the Taxes tab for more accurate delinquent taxes due.