Elected Officials
Courts
Departments
Initiatives
Open Government
About
Login / Register
Home
/
Property & Tax Records
/
Property Records
/
Property & Tax Search
/
Parcel Profile
/
Print View
Search for Another Parcel
Parcel Profile
Historical Card
Sketches
Photos
Tax Map
Taxes
Print View
Print This Page
Address: 12575 CHERRY HILL RD
Parcel: 04011031000900
Parcel Profile
Address
12575 | CHERRY HILL | RD
Street Status
PAVED
School District
NORTHWESTERN SCHOOL
Acreage
7.5600
Classification
R
Land Use Code
SINGLE FAMILY
Legal Description
12575 CHERRY HILL RD 7.56 AC
Square Feet
1568
Topo
ROLLING
Utility
GAS | WELL | SEPTIC
Zoning
Please contact your municipal zoning officer
Deed Book
1286
Deed Page
0345
2026 Tax Values
Land Value / Taxable
36,400 / 36,400.00
Building Value / Taxable
60,900 / 60,900.00
Total Value / Taxable
97,300 / 97,300.00
Clean & Green
Inactive
Homestead Status
Active
Farmstead Status
Inactive
Lerta Amount
0
Lerta Expiration Year
0
Residential Data
Card 1
Style
CONVENTIONAL
Basement
FULL
Year Built
1916
Exterior Wall
FRAME
Total Living Area
1568
Full Baths
1
Half Baths
0
Fuel Type
GAS
Heating
CENTRAL
Heating System
FORCED AIR
Stories
1.5
Total Bedrooms
2
Total Family Rooms
0
Total Rooms
6
Fireplaces
0
Other Buildings & Yards
Description
Built
Width
Length
Area
FRAME OR CB DETACHED GARAGE
1959
20
30
600
Sales History
Sale Date
Type
Price
Book / Page
Other Info
11/3/1977
0
1286 / 0345
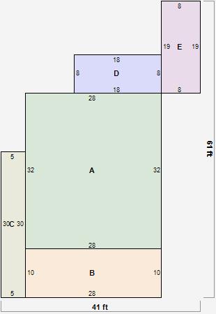
Parcel Sketches
Residential Card 1
A
MAIN
896 square feet
B
EFP ENCL FRAME PORCH
280 square feet
C
OFP OPEN FRAME PORCH
150 square feet
D
WDDCK WOOD DECKS
144 square feet
E
ST_PT STONE OR TILE PATIO
152 square feet
Parcel Images