Elected Officials
Courts
Departments
Initiatives
Open Government
About
Login / Register
Home
/
Property & Tax Records
/
Property Records
/
Property & Tax Search
/
Parcel Profile
/
Print View
Search for Another Parcel
Parcel Profile
Historical Card
Sketches
Photos
Tax Map
Taxes
Print View
Print This Page
Address: 9430 AKERLEY RD
Parcel: 04013034000400
Parcel Profile
Address
9430 | AKERLEY | RD
Street Status
UNPAVED
School District
NORTHWESTERN SCHOOL
Acreage
41.0840
Classification
F
Land Use Code
20 - 79.99 ACRES
Legal Description
9430 AKERLEY RD 41.084 AC | REF S2019-18872
Square Feet
2168
Topo
LEVEL | ROLLING
Utility
GAS | WELL | SEPTIC
Zoning
Please contact your municipal zoning officer
Deed Book
2024
Deed Page
019645
2026 Tax Values
Land Value / Taxable
65,000 / 42,300.00
Building Value / Taxable
102,100 / 102,100.00
Total Value / Taxable
167,100 / 144,400.00
Clean & Green
Active
Homestead Status
Inactive
Farmstead Status
Inactive
Lerta Amount
0
Lerta Expiration Year
0
Residential Data
Card 1
Style
OLD STYLE
Basement
FULL
Year Built
1931
Exterior Wall
ALUMINUM/VINYL
Total Living Area
2168
Full Baths
1
Half Baths
0
Fuel Type
GAS
Heating
CENTRAL
Heating System
FORCED AIR
Stories
2.0
Total Bedrooms
3
Total Family Rooms
0
Total Rooms
7
Fireplaces
1
Other Buildings & Yards
Description
Built
Width
Length
Area
FRAME UTILITY SHED
1950
15
30
450
DAIRY AND HORSE BARNS
1966
30
52
1560
CONCRETE STAVE WITH ROOF
1940
12
50
5652
CONCRETE STAVE WITH ROOF
1940
12
50
5652
CONCRETE STAVE WITH ROOF
1940
10
30
2355
CONCRETE STAVE WITH ROOF
1940
10
30
2355
CONCRETE STAVE WITH ROOF
1940
18
50
12717
CONCRETE FEED BUNK
1950
0
0
1
FRAME UTILITY SHED
1940
20
40
800
FRAME OR CB DETACHED GARAGE
1940
40
40
1600
ATTACHED CB MILK HOUSE
1955
12
14
168
FLAT BARN
1955
16
20
320
DAIRY AND HORSE BARNS
1950
32
50
1600
BARN CLEANER GUTTER
1950
0
0
1
FLAT BARN
1950
25
32
800
ONE SIDE OPEN WD POLE BLDG
1966
28
64
1792
DAIRY AND HORSE BARNS
1977
35
78
2730
METAL SHED
1977
13
50
650
Sales History
Sale Date
Type
Price
Book / Page
Other Info
11/26/2024
LAND & BUILDING
0
2024 / 019648
SPECIAL WARRANTY DEED
11/26/2024
LAND & BUILDING
0
2024 / 019645
SPECIAL WARRANTY DEED
1/13/2023
LAND & BUILDING
180000
2023 / 000714
DEED
10/10/2017
LAND & BUILDING
0
2017 / 022178
FIDUCIARY DEED
9/3/2010
LAND & BUILDING
0
2010 / 021732
WARRANTY/SURVIVORSHIP DEED
6/15/1956
0
0732 / 0094
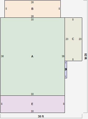
Parcel Sketches
Residential Card 1
A
MAIN
1080 square feet
B
FR UT FRAME UTILITY BUILDING
208 square feet
C
MA_PT CONC/MAS PATIO
160 square feet
D
FROVR FRAME OVERHANG
8 square feet
E
OFP OPEN FRAME PORCH
240 square feet
Parcel Images
Please note:
this tab is for informational purposes only and may not show all delinquencies, see the Taxes tab for more accurate delinquent taxes due.