Elected Officials
Courts
Departments
Initiatives
Open Government
About
Login / Register
Home
/
Property & Tax Records
/
Property Records
/
Property & Tax Search
/
Parcel Profile
/
Print View
Search for Another Parcel
Parcel Profile
Historical Card
Sketches
Photos
Tax Map
Taxes
Print View
Print This Page
Address: 14735 W CHERRY HILL RD
Parcel: 04013035000200
Parcel Profile
Address
14735 | W | CHERRY HILL | RD
Street Status
PAVED
School District
NORTHWESTERN SCHOOL
Acreage
23.3530
Classification
F
Land Use Code
20 - 79.99 ACRES
Legal Description
14735 W CHERRY HILL RD LOT 2 23.353 AC NET | 23.908 AC GROSS | MB 2018-19962
Square Feet
1934
Topo
LEVEL | ROLLING
Utility
GAS | WELL | SEPTIC
Zoning
Please contact your municipal zoning officer
Deed Book
2019
Deed Page
024603
2026 Tax Values
Land Value / Taxable
38,000 / 35,900.00
Building Value / Taxable
80,800 / 80,800.00
Total Value / Taxable
118,800 / 116,700.00
Clean & Green
Active
Homestead Status
Active
Farmstead Status
Active
Lerta Amount
0
Lerta Expiration Year
0
Residential Data
Card 1
Style
OLD STYLE
Basement
FULL
Year Built
1890
Exterior Wall
FRAME
Total Living Area
1934
Full Baths
1
Half Baths
0
Fuel Type
GAS
Heating
CENTRAL
Heating System
FORCED AIR
Stories
2.0
Total Bedrooms
3
Total Family Rooms
0
Total Rooms
9
Fireplaces
0
Other Buildings & Yards
Description
Built
Width
Length
Area
FRAME UTILITY SHED
1900
14
20
280
FLAT BARN
1995
32
44
1408
FOUR SIDE CLOSED WD POLE BLDG
1995
32
48
1536
FRAME UTILITY SHED
1995
12
48
576
Sales History
Sale Date
Type
Price
Book / Page
Other Info
11/27/2019
LAND & BUILDING
0
2019 / 024603
SPECIAL WARRANTY DEED
5/23/2006
LAND & BUILDING
0
1329 / 2350
DEED
7/19/2000
0
0715 / 1564
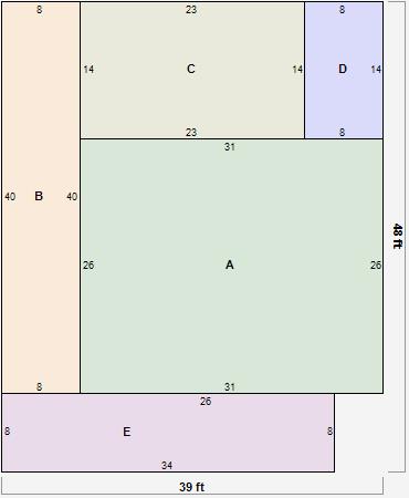
Parcel Sketches
Residential Card 1
A
MAIN
806 square feet
B
OFP OPEN FRAME PORCH
320 square feet
C
1S FR ONE STORY FRAME
322 square feet
D
OFP OPEN FRAME PORCH
112 square feet
E
OFP OPEN FRAME PORCH
272 square feet
Parcel Images
Please note:
this tab is for informational purposes only and may not show all delinquencies, see the Taxes tab for more accurate delinquent taxes due.