Elected Officials
Courts
Departments
Initiatives
Open Government
About
Login / Register
Home
/
Property & Tax Records
/
Property Records
/
Property & Tax Search
/
Parcel Profile
/
Print View
Search for Another Parcel
Parcel Profile
Historical Card
Sketches
Photos
Tax Map
Taxes
Print View
Print This Page
Address: 9999 GRIFFEY RD
Parcel: 04015040001000
Parcel Profile
Address
9999 | GRIFFEY | RD
Street Status
PAVED
School District
NORTHWESTERN SCHOOL
Acreage
1.9290
Classification
R
Land Use Code
SINGLE FAMILY
Legal Description
9999 GRIFFEY RD LOT 1 1.979 AC
Square Feet
884
Topo
LEVEL
Utility
WELL | SEPTIC
Zoning
Please contact your municipal zoning officer
Deed Book
1422
Deed Page
0998
2026 Tax Values
Land Value / Taxable
24,000 / 24,000.00
Building Value / Taxable
42,200 / 42,200.00
Total Value / Taxable
66,200 / 66,200.00
Clean & Green
Inactive
Homestead Status
Active
Farmstead Status
Inactive
Lerta Amount
0
Lerta Expiration Year
0
Residential Data
Card 1
Style
BUNGALOW
Basement
FULL
Year Built
1900
Exterior Wall
ALUMINUM/VINYL
Total Living Area
884
Full Baths
1
Half Baths
0
Fuel Type
COAL/WOOD
Heating
NON CENTRAL
Heating System
NONE
Stories
1.0
Total Bedrooms
2
Total Family Rooms
0
Total Rooms
7
Fireplaces
0
Other Buildings & Yards
Description
Built
Width
Length
Area
FOUR SIDE CLOSED MTL POLE BLDG
1950
10
18
180
FOUR SIDE CLOSED MTL POLE BLDG
1970
16
41
656
FOUR SIDE CLOSED WD POLE BLDG
2006
30
40
1200
1S LEAN TO
2006
12
30
360
Sales History
Sale Date
Type
Price
Book / Page
Other Info
6/11/2007
LAND & BUILDING
35000
1422 / 0998
WARRANTY/SURVIVORSHIP DEED
2/8/2002
LAND & BUILDING
4600
852 / 1299
10/29/1997
LAND & BUILDING
17000
527 / 1831
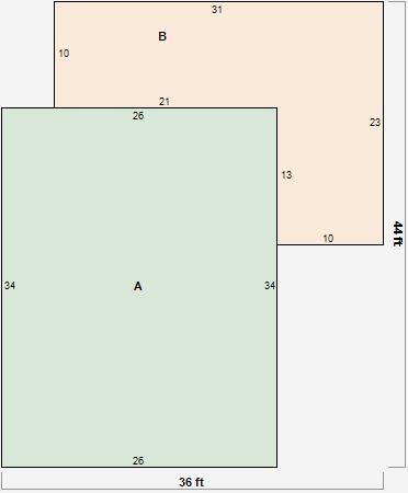
Parcel Sketches
Residential Card 1
A
MAIN
884 square feet
B
FR UT FRAME UTILITY BUILDING
440 square feet
Parcel Images
Please note:
this tab is for informational purposes only and may not show all delinquencies, see the Taxes tab for more accurate delinquent taxes due.