Elected Officials
Courts
Departments
Initiatives
Open Government
About
Login / Register
Home
/
Property & Tax Records
/
Property Records
/
Property & Tax Search
/
Parcel Profile
/
Print View
Search for Another Parcel
Parcel Profile
Historical Card
Sketches
Photos
Tax Map
Taxes
Print View
Print This Page
Address: 9757 GRIFFEY RD
Parcel: 04015040001300
Parcel Profile
Address
9757 | GRIFFEY | RD
Street Status
PAVED
School District
NORTHWESTERN SCHOOL
Acreage
20.7660
Classification
F
Land Use Code
20 - 79.99 ACRES
Legal Description
9757 GRIFFEY RD 20.766AC | 22.038 AC GROSS | 2012-31390
Square Feet
2464
Topo
LEVEL
Utility
GAS | WELL
Zoning
Please contact your municipal zoning officer
Deed Book
2025
Deed Page
001707
2025 Tax Values
Land Value / Taxable
31,400 / 31,400.00
Building Value / Taxable
112,000 / 112,000.00
Total Value / Taxable
143,400 / 143,400.00
Clean & Green
Inactive
Homestead Status
Active
Farmstead Status
Inactive
Lerta Amount
0
Lerta Expiration Year
0
Residential Data
Card 1
Style
OLD STYLE
Basement
FULL
Year Built
1900
Exterior Wall
ALUMINUM/VINYL
Total Living Area
2464
Full Baths
2
Half Baths
0
Fuel Type
GAS
Heating
CENTRAL
Heating System
HOT WATER
Stories
2.0
Total Bedrooms
5
Total Family Rooms
0
Total Rooms
10
Fireplaces
1
Other Buildings & Yards
Description
Built
Width
Length
Area
FLAT BARN
2001
32
60
1920
FLAT BARN ADDITION
2001
16
60
960
Sales History
Sale Date
Type
Price
Book / Page
Other Info
2/3/2025
LAND & BUILDING
0
2025 / 001705
QUIT CLAIM DEED
2/3/2025
LAND & BUILDING
0
2025 / 001706
QUIT CLAIM DEED
2/3/2025
LAND & BUILDING
0
2025 / 001707
QUIT CLAIM DEED
2/2/2018
LAND & BUILDING
0
2018 / 002195
QUIT CLAIM DEED
2/2/2018
LAND & BUILDING
0
2018 / 002192
DEED
5/2/2017
LAND & BUILDING
0
2017 / 008916
QUIT CLAIM DEED
2/8/2013
LAND & BUILDING
0
2013 / 003147
QUIT CLAIM DEED
6/3/1974
0
1121 / 0199
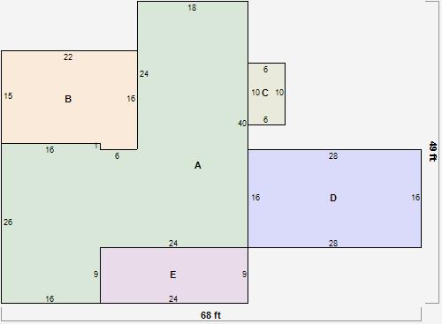
Parcel Sketches
Residential Card 1
A
MAIN
1232 square feet
B
WDDCK WOOD DECKS
336 square feet
C
OFP OPEN FRAME PORCH
60 square feet
D
FR GR FRAME GARAGE
448 square feet
E
OFP OPEN FRAME PORCH
216 square feet
Parcel Images