Elected Officials
Courts
Departments
Initiatives
Open Government
About
Login / Register
Home
/
Property & Tax Records
/
Property Records
/
Property & Tax Search
/
Parcel Profile
/
Print View
Search for Another Parcel
Parcel Profile
Historical Card
Sketches
Photos
Tax Map
Taxes
Print View
Print This Page
Address: 11205 ROUTE 6N
Parcel: 04017047100500
Parcel Profile
Address
11205 | ROUTE 6N
Street Status
PAVED
School District
NORTHWESTERN SCHOOL
Acreage
0.8896
Classification
R
Land Use Code
SINGLE FAMILY
Legal Description
11205 ROUTE 6N 110 X 175 IRR
Square Feet
1216
Topo
ROLLING
Utility
GAS | PUBLIC WATER | SEPTIC
Zoning
Please contact your municipal zoning officer
Deed Book
2022
Deed Page
012844
2026 Tax Values
Land Value / Taxable
18,700 / 18,700.00
Building Value / Taxable
40,200 / 40,200.00
Total Value / Taxable
58,900 / 58,900.00
Clean & Green
Inactive
Homestead Status
Inactive
Farmstead Status
Inactive
Lerta Amount
0
Lerta Expiration Year
0
Residential Data
Card 1
Style
OLD STYLE
Basement
FULL
Year Built
1900
Exterior Wall
ALUMINUM/VINYL
Total Living Area
1216
Full Baths
1
Half Baths
0
Fuel Type
GAS
Heating
CENTRAL
Heating System
FORCED AIR
Stories
2.0
Total Bedrooms
3
Total Family Rooms
0
Total Rooms
7
Fireplaces
0
Other Buildings & Yards
No OBY Data Found
Sales History
Sale Date
Type
Price
Book / Page
Other Info
6/15/2022
LAND & BUILDING
25591
2022 / 012844
SPECIAL WARRANTY DEED
7/31/1963
0
0880 / 0507
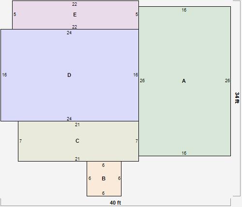
Parcel Sketches
Residential Card 1
A
MAIN
416 square feet
B
WDDCK WOOD DECKS
36 square feet
C
EFP ENCL FRAME PORCH
147 square feet
D
UNFIN BSMT BASEMENT UNFINISHED 1S FR ONE STORY FRAME
384 square feet
E
EFP ENCL FRAME PORCH
110 square feet
Parcel Images
Please note:
this tab is for informational purposes only and may not show all delinquencies, see the Taxes tab for more accurate delinquent taxes due.