Elected Officials
Courts
Departments
Initiatives
Open Government
About
Login / Register
Home
/
Property & Tax Records
/
Property Records
/
Property & Tax Search
/
Parcel Profile
/
Print View
Search for Another Parcel
Parcel Profile
Historical Card
Sketches
Photos
Tax Map
Taxes
Print View
Print This Page
Address: 10600 ROUTE 18
Parcel: 04018049000800
Parcel Profile
Address
10600 | ROUTE 18
Street Status
PAVED
School District
NORTHWESTERN SCHOOL
Acreage
29.0400
Classification
F
Land Use Code
20 - 79.99 ACRES
Legal Description
10600 ROUTE 18 29.04 AC
Square Feet
1924
Topo
LEVEL | ROLLING
Utility
PUBLIC WATER | GAS | SEPTIC
Zoning
Please contact your municipal zoning officer
Deed Book
1057
Deed Page
0490
2026 Tax Values
Land Value / Taxable
51,500 / 23,700.00
Building Value / Taxable
84,900 / 84,900.00
Total Value / Taxable
136,400 / 108,600.00
Clean & Green
Active
Homestead Status
Active
Farmstead Status
Active
Lerta Amount
0
Lerta Expiration Year
0
Residential Data
Card 1
Style
BUNGALOW
Basement
FULL
Year Built
1860
Exterior Wall
COMPOSITION
Total Living Area
1924
Full Baths
1
Half Baths
0
Fuel Type
GAS
Heating
CENTRAL
Heating System
FORCED AIR
Stories
1.0
Total Bedrooms
2
Total Family Rooms
0
Total Rooms
6
Fireplaces
1
Other Buildings & Yards
Description
Built
Width
Length
Area
FRAME OR CB DETACHED GARAGE
1900
14
18
252
FOUR SIDE CLOSED MTL POLE BLDG
2001
32
48
1536
Sales History
Sale Date
Type
Price
Book / Page
Other Info
11/23/1971
0
1057 / 0490
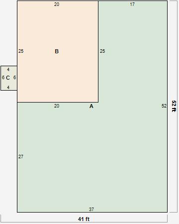
Parcel Sketches
Residential Card 1
A
MAIN
1424 square feet
B
1S FR ONE STORY FRAME
500 square feet
C
OFP OPEN FRAME PORCH
24 square feet
Parcel Images
Please note:
this tab is for informational purposes only and may not show all delinquencies, see the Taxes tab for more accurate delinquent taxes due.