Elected Officials
Courts
Departments
Initiatives
Open Government
About
Login / Register
Home
/
Property & Tax Records
/
Property Records
/
Property & Tax Search
/
Parcel Profile
/
Print View
Search for Another Parcel
Parcel Profile
Historical Card
Sketches
Photos
Tax Map
Taxes
Print View
Print This Page
Address: 10630 ROUTE 18
Parcel: 04018049001100
Parcel Profile
Address
10630 | ROUTE 18
Street Status
PAVED
School District
NORTHWESTERN SCHOOL
Acreage
9.0000
Classification
R
Land Use Code
SINGLE FAMILY
Legal Description
10630 ROUTE 18 9 AC
Square Feet
1850
Topo
LEVEL
Utility
PUBLIC WATER | GAS | WELL
Zoning
Please contact your municipal zoning officer
Deed Book
2019
Deed Page
000813
2025 Tax Values
Land Value / Taxable
39,600 / 39,600.00
Building Value / Taxable
62,200 / 62,200.00
Total Value / Taxable
101,800 / 101,800.00
Clean & Green
Inactive
Homestead Status
Active
Farmstead Status
Inactive
Lerta Amount
0
Lerta Expiration Year
0
Residential Data
Card 1
Style
CONVENTIONAL
Basement
FULL
Year Built
1850
Exterior Wall
ALUMINUM/VINYL
Total Living Area
1850
Full Baths
1
Half Baths
0
Fuel Type
GAS
Heating
CENTRAL
Heating System
HOT WATER
Stories
1.5
Total Bedrooms
2
Total Family Rooms
0
Total Rooms
5
Fireplaces
1
Other Buildings & Yards
Description
Built
Width
Length
Area
FRAME OR CB DETACHED GARAGE
1999
24
40
960
FRAME OR CB DETACHED GARAGE
1900
14
20
280
Sales History
Sale Date
Type
Price
Book / Page
Other Info
1/14/2019
LAND & BUILDING
153000
2019 / 000813
SPECIAL WARRANTY DEED
9/15/2015
LAND & BUILDING
60000
2015 / 020293
FIDUCIARY DEED
8/1/1955
0
0735 / 0404
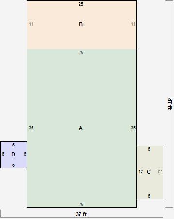
Parcel Sketches
Residential Card 1
A
MAIN
900 square feet
B
1S FR ONE STORY FRAME
275 square feet
C
OFP OPEN FRAME PORCH
72 square feet
D
OFP OPEN FRAME PORCH
36 square feet
Parcel Images