Elected Officials
Courts
Departments
Initiatives
Open Government
About
Login / Register
Home
/
Property & Tax Records
/
Property Records
/
Property & Tax Search
/
Parcel Profile
/
Print View
Search for Another Parcel
Parcel Profile
Historical Card
Sketches
Photos
Tax Map
Taxes
Print View
Print This Page
Address: 10573 ROUTE 6N
Parcel: 04018050000300
Parcel Profile
Address
10573 | ROUTE 6N
Street Status
PAVED
School District
NORTHWESTERN SCHOOL
Acreage
0.5410
Classification
R
Land Use Code
SINGLE FAMILY
Legal Description
10573 ROUTE 6N 115 X 205
Square Feet
1012
Topo
LEVEL
Utility
PUBLIC WATER | GAS | SEPTIC
Zoning
Please contact your municipal zoning officer
Deed Book
2024
Deed Page
008485
2026 Tax Values
Land Value / Taxable
21,800 / 21,800.00
Building Value / Taxable
41,200 / 41,200.00
Total Value / Taxable
63,000 / 63,000.00
Clean & Green
Inactive
Homestead Status
Inactive
Farmstead Status
Inactive
Lerta Amount
0
Lerta Expiration Year
0
Residential Data
Card 1
Style
BUNGALOW
Basement
NONE
Year Built
1920
Exterior Wall
ALUMINUM/VINYL
Total Living Area
1012
Full Baths
1
Half Baths
0
Fuel Type
GAS
Heating
CENTRAL
Heating System
FORCED AIR
Stories
1.0
Total Bedrooms
2
Total Family Rooms
0
Total Rooms
5
Fireplaces
0
Other Buildings & Yards
No OBY Data Found
Sales History
Sale Date
Type
Price
Book / Page
Other Info
6/5/2024
LAND & BUILDING
146000
2024 / 008485
SPECIAL WARRANTY DEED
9/20/2000
LAND & BUILDING
56900
0727 / 1358
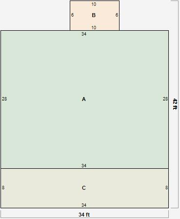
Parcel Sketches
Residential Card 1
A
MAIN
952 square feet
B
1S FR ONE STORY FRAME
60 square feet
C
OFP OPEN FRAME PORCH
272 square feet
Parcel Images
Please note:
this tab is for informational purposes only and may not show all delinquencies, see the Taxes tab for more accurate delinquent taxes due.