Elected Officials
Courts
Departments
Initiatives
Open Government
About
Login / Register
Home
/
Property & Tax Records
/
Property Records
/
Property & Tax Search
/
Parcel Profile
/
Print View
Search for Another Parcel
Parcel Profile
Historical Card
Sketches
Photos
Tax Map
Taxes
Print View
Print This Page
Address: 10611 ROUTE 18
Parcel: 04018050003000
Parcel Profile
Address
10611 | ROUTE 18
Street Status
PAVED
School District
NORTHWESTERN SCHOOL
Acreage
0.7464
Classification
R
Land Use Code
SINGLE FAMILY
Legal Description
10611 ROUTE 18 179 X 206 IRR | 0.8492 AC GROSS
Square Feet
2116
Topo
LEVEL
Utility
GAS
Zoning
Please contact your municipal zoning officer
Deed Book
2018
Deed Page
009201
2026 Tax Values
Land Value / Taxable
23,500 / 23,500.00
Building Value / Taxable
78,800 / 78,800.00
Total Value / Taxable
102,300 / 102,300.00
Clean & Green
Inactive
Homestead Status
Active
Farmstead Status
Inactive
Lerta Amount
0
Lerta Expiration Year
0
Residential Data
Card 1
Style
CAPE
Basement
FULL
Year Built
1927
Exterior Wall
STUCCO
Total Living Area
2116
Full Baths
1
Half Baths
1
Fuel Type
GAS
Heating
CENTRAL
Heating System
FORCED AIR
Stories
1.5
Total Bedrooms
3
Total Family Rooms
2
Total Rooms
8
Fireplaces
0
Other Buildings & Yards
Description
Built
Width
Length
Area
FRAME OR CB DETACHED GARAGE
1950
20
20
400
Sales History
Sale Date
Type
Price
Book / Page
Other Info
5/15/2018
LAND & BUILDING
116000
2018 / 009201
SPECIAL WARRANTY DEED
11/16/2007
LAND & BUILDING
0
1460 / 1473
QUIT CLAIM DEED
11/15/2002
LAND & BUILDING
98000
0945 / 1638
DEED
4/18/1997
0
0493 / 1278
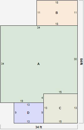
Parcel Sketches
Residential Card 1
A
MAIN
1096 square feet
B
UNFIN BSMT BASEMENT UNFINISHED 1S FR ONE STORY FRAME
198 square feet
C
EMP ENCL MASONRY PORCH
195 square feet
D
MA STOOP/TERR MAS STOOP
117 square feet
Parcel Images
Please note:
this tab is for informational purposes only and may not show all delinquencies, see the Taxes tab for more accurate delinquent taxes due.