Elected Officials
Courts
Departments
Initiatives
Open Government
About
Login / Register
Home
/
Property & Tax Records
/
Property Records
/
Property & Tax Search
/
Parcel Profile
/
Print View
Search for Another Parcel
Parcel Profile
Historical Card
Sketches
Photos
Tax Map
Taxes
Print View
Print This Page
Address: 10660 KNAPP RD
Parcel: 04020072000301
Parcel Profile
Address
10660 | KNAPP | RD
Street Status
PAVED
School District
NORTHWESTERN SCHOOL
Acreage
10.0000
Classification
F
Land Use Code
10-19.99 ACRES
Legal Description
10660 KNAPP RD 10 AC
Square Feet
1376
Topo
LEVEL | ROLLING
Utility
NONE
Zoning
Please contact your municipal zoning officer
Deed Book
1154
Deed Page
0216
2026 Tax Values
Land Value / Taxable
26,900 / 7,600.00
Building Value / Taxable
106,000 / 106,000.00
Total Value / Taxable
132,900 / 113,600.00
Clean & Green
Active
Homestead Status
Active
Farmstead Status
Active
Lerta Amount
0
Lerta Expiration Year
0
Residential Data
Card 1
Style
BUNGALOW
Basement
PART
Year Built
1935
Exterior Wall
ALUMINUM/VINYL
Total Living Area
1376
Full Baths
1
Half Baths
0
Fuel Type
OIL
Heating
CENTRAL
Heating System
FORCED AIR
Stories
1.0
Total Bedrooms
2
Total Family Rooms
0
Total Rooms
6
Fireplaces
0
Other Buildings & Yards
Description
Built
Width
Length
Area
FRAME UTILITY SHED
1980
12
20
240
ONE SIDE OPEN WD POLE BLDG
1990
12
24
288
FLAT BARN
1930
30
46
1380
FLAT BARN ADDITION
1930
12
30
360
FOUR SIDE CLOSED MTL POLE BLDG
2010
48
32
1536
FOUR SIDE CLOSED MTL POLE BLDG
2024
48
34
1632
1S LEAN TO
2017
46
18
828
FOUR SIDE CLOSED WD POLE BLDG
1990
16
20
320
1S LEAN TO
1990
4
20
80
Sales History
Sale Date
Type
Price
Book / Page
Other Info
6/4/1975
0
1154 / 0216
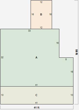
Parcel Sketches
Residential Card 1
A
MAIN
1184 square feet
B
1S FR ONE STORY FRAME
192 square feet
C
OFP OPEN FRAME PORCH
410 square feet
Parcel Images
Please note:
this tab is for informational purposes only and may not show all delinquencies, see the Taxes tab for more accurate delinquent taxes due.