Elected Officials
Courts
Departments
Initiatives
Open Government
About
Login / Register
Home
/
Property & Tax Records
/
Property Records
/
Property & Tax Search
/
Parcel Profile
/
Print View
Search for Another Parcel
Parcel Profile
Historical Card
Sketches
Photos
Tax Map
Taxes
Print View
Print This Page
Address: 10635 BARNEY RD
Parcel: 04020072000700
Parcel Profile
Address
10635 | BARNEY | RD
Street Status
UNPAVED
School District
NORTHWESTERN SCHOOL
Acreage
48.7500
Classification
F
Land Use Code
80 ACRES OR MORE
Legal Description
10635 BARNEY RD 48.75 AC
Square Feet
1576
Topo
LEVEL | ROLLING
Utility
WELL | SEPTIC
Zoning
Please contact your municipal zoning officer
Deed Book
1197
Deed Page
0246
2026 Tax Values
Land Value / Taxable
54,500 / 19,900.00
Building Value / Taxable
81,600 / 81,600.00
Total Value / Taxable
136,100 / 101,500.00
Clean & Green
Active
Homestead Status
Active
Farmstead Status
Active
Lerta Amount
0
Lerta Expiration Year
0
Residential Data
Card 1
Style
CONVENTIONAL
Basement
FULL
Year Built
1930
Exterior Wall
ALUMINUM/VINYL
Total Living Area
1576
Full Baths
1
Half Baths
0
Fuel Type
GAS
Heating
CENTRAL
Heating System
FORCED AIR
Stories
1.5
Total Bedrooms
3
Total Family Rooms
0
Total Rooms
7
Fireplaces
1
Other Buildings & Yards
Description
Built
Width
Length
Area
FOUR SIDE CLOSED MTL POLE BLDG
1982
30
100
3000
FRAME UTILITY SHED
1996
15
20
300
FOUR SIDE CLOSED MTL POLE BLDG
1982
24
40
960
FOUR SIDE CLOSED WD POLE BLDG
2005
24
36
864
Sales History
Sale Date
Type
Price
Book / Page
Other Info
2/12/1976
0
1197 / 0246
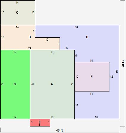
Parcel Sketches
Residential Card 1
A
MAIN
504 square feet
B
UNFIN BSMT BASEMENT UNFINISHED 1S FR ONE STORY FRAME
190 square feet
C
WDDCK WOOD DECKS
140 square feet
D
WDDCK WOOD DECKS
626 square feet
E
1S FR ONE STORY FRAME
168 square feet
F
OFP OPEN FRAME PORCH
24 square feet
G
UNFIN BSMT BASEMENT UNFINISHED 1S FR ONE STORY FRAME AT UN ATTIC-UNFINISHED
336 square feet
Parcel Images
Please note:
this tab is for informational purposes only and may not show all delinquencies, see the Taxes tab for more accurate delinquent taxes due.