Elected Officials
Courts
Departments
Initiatives
Open Government
About
Login / Register
Home
/
Property & Tax Records
/
Property Records
/
Property & Tax Search
/
Parcel Profile
/
Print View
Search for Another Parcel
Parcel Profile
Historical Card
Sketches
Photos
Tax Map
Taxes
Print View
Print This Page
Address: 12619 TRACY RD
Parcel: 04021074001200
Parcel Profile
Address
12619 | TRACY | RD
Street Status
UNPAVED
School District
NORTHWESTERN SCHOOL
Acreage
54.6200
Classification
F
Land Use Code
20 - 79.99 ACRES
Legal Description
12619 TRACY RD 54.62 AC
Square Feet
1736
Topo
LEVEL
Utility
WELL | SEPTIC
Zoning
Please contact your municipal zoning officer
Deed Book
2018
Deed Page
021868
2025 Tax Values
Land Value / Taxable
51,900 / 18,600.00
Building Value / Taxable
72,120 / 72,120.00
Total Value / Taxable
124,020 / 90,720.00
Clean & Green
Active
Homestead Status
Active
Farmstead Status
Inactive
Lerta Amount
0
Lerta Expiration Year
0
Residential Data
Card 1
Style
OLD STYLE
Basement
FULL
Year Built
1900
Exterior Wall
ALUMINUM/VINYL
Total Living Area
1736
Full Baths
2
Half Baths
0
Fuel Type
PROPANE
Heating
CENTRAL
Heating System
FORCED AIR
Stories
2.0
Total Bedrooms
3
Total Family Rooms
0
Total Rooms
5
Fireplaces
0
Other Buildings & Yards
Description
Built
Width
Length
Area
FOUR SIDE CLOSED MTL POLE BLDG
1977
24
32
768
FOUR SIDE CLOSED MTL POLE BLDG
1977
24
52
1248
14'X'8' SLIDE DOOR
1977
0
0
1
14'X12' SLIDE DOOR
1977
0
0
1
Sales History
Sale Date
Type
Price
Book / Page
Other Info
10/23/2018
LAND & BUILDING
252000
2018 / 021868
SPECIAL WARRANTY DEED
1/24/1974
0
1112 / 0636
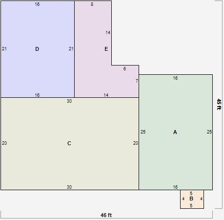
Parcel Sketches
Residential Card 1
A
MAIN
400 square feet
B
OFP OPEN FRAME PORCH
20 square feet
C
UNFIN BSMT BASEMENT UNFINISHED 1S FR ONE STORY FRAME
600 square feet
D
UNFIN BSMT BASEMENT UNFINISHED 1S FR ONE STORY FRAME
336 square feet
E
OFP OPEN FRAME PORCH
210 square feet
Parcel Images