Elected Officials
Courts
Departments
Initiatives
Open Government
About
Login / Register
Home
/
Property & Tax Records
/
Property Records
/
Property & Tax Search
/
Parcel Profile
/
Print View
Search for Another Parcel
Parcel Profile
Historical Card
Sketches
Photos
Tax Map
Taxes
Print View
Print This Page
Address: 14233 TRACY RD
Parcel: 04023077000600
Parcel Profile
Address
14233 | TRACY | RD
Street Status
UNPAVED
School District
NORTHWESTERN SCHOOL
Acreage
61.5000
Classification
F
Land Use Code
20 - 79.99 ACRES
Legal Description
14233 TRACY RD 61.50 AC
Square Feet
1540
Topo
LEVEL
Utility
GAS | WELL | SEPTIC
Zoning
Please contact your municipal zoning officer
Deed Book
2019
Deed Page
009624
2026 Tax Values
Land Value / Taxable
63,400 / 63,400.00
Building Value / Taxable
80,200 / 80,200.00
Total Value / Taxable
143,600 / 143,600.00
Clean & Green
Inactive
Homestead Status
Inactive
Farmstead Status
Inactive
Lerta Amount
0
Lerta Expiration Year
0
Residential Data
Card 1
Style
OLD STYLE
Basement
FULL
Year Built
1870
Exterior Wall
ALUMINUM/VINYL
Total Living Area
1540
Full Baths
1
Half Baths
1
Fuel Type
GAS
Heating
CENTRAL
Heating System
FORCED AIR
Stories
2.0
Total Bedrooms
3
Total Family Rooms
0
Total Rooms
7
Fireplaces
0
Other Buildings & Yards
Description
Built
Width
Length
Area
FOUR SIDE CLOSED MTL POLE BLDG
1992
30
57
1710
ONE SIDE OPEN MTL POLE BLDG
2008
32
56
1792
Sales History
Sale Date
Type
Price
Book / Page
Other Info
5/24/2019
LAND & BUILDING
143000
2019 / 009624
5/24/2012
LAND & BUILDING
145000
2012 / 013351
FIDUCIARY DEED
3/18/1958
0
773 / 313
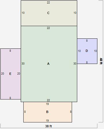
Parcel Sketches
Residential Card 1
A
MAIN
660 square feet
B
OFP OPEN FRAME PORCH
152 square feet
C
1S FR ONE STORY FRAME
220 square feet
D
OFP OPEN FRAME PORCH
80 square feet
E
OFP OPEN FRAME PORCH
160 square feet
Parcel Images
Please note:
this tab is for informational purposes only and may not show all delinquencies, see the Taxes tab for more accurate delinquent taxes due.